

6.6万円
管理費2,900円
1LDK / 42.37m²
2階 / 地上2階建
築17年 / 賃貸アパート
| 店舗名 | 株式会社 天極 アパマンショップ若葉店 |
|---|---|
| 住所 | 埼玉県鶴ヶ島市若葉1丁目8-5 |
| 定休日 | 火曜、水曜 |
| 営業時間 | 10:00〜17:30 |
| 交通 | 東武鉄道東上線 若葉駅 |
| 免許番号 | 埼玉県知事(10)第11549号 |
| 代表者名 | - |
| 所属団体 | (公社)全日本不動産協会埼玉県本部 (公社) 首都圏不動産公正取引協議会加盟 |
| TEL | 049-279-0711 |

4.95
5.00
5.00
5.00
4.67
5.00
5.00
4.84
住みたいなと思える物件の取り扱いをしていたので、こちらの不動産会社に決めました。問い合わせ後スムーズに内見の予定が決まり、内見の時も親切に対応してくださり、分からない箇所について質問もしやすく、丁寧に答えてくれました。内見後も、チャットのような形で質問ができ、気軽にメッセージのやり取りができました。返信もはやく、電話のやり取りよりとても便利でした。見積りを貰う際に、自分たちには不要なオプション(清掃費や簡易消火器など)を見積りから外してほしいと伝えた際に、他社では外すことが出来なかったり、食い下がってくることが多かったですが、この不動産会社に関しては、すぐに外してくれて、とても好感がもてました。火災保険なども、自分で任意の保険を選んで契約をしたいと伝えた際にも、保証内容を指示してくれたり、加入前には保証内容に間違いがないかチェックしてくれたり、親切にサポートして頂きました。全体的に、誠実に対応して頂き、とてもいい不動産会社だったと思います。
(2024/03投稿)5.00
天極アパマンショップの2店舗に一斉に問合せをしたところ、若葉店の方が返信がより早かったこと、添付してくださった物件情報の情報量がかなり豊富で信頼がもてると感じたことからもう一店舗の方には若葉店で対応いただく旨連絡し、最後まで若葉店でお世話になりました。内見から鍵引き渡しまで2年目の若手社員さん(三好さん)とベテランの社員さん(高橋さん)が担当で、お二人ともとても感じがよく親切でした。仕事の関係上、なるべく早く入居したいという私の希望もくんでくださり、審査から契約まで最短の日程を組んでくれたことも大変助かりました。また、内見時は採寸などする時間がなかったのですが、後で採寸したい旨連絡すると三好さんが室内すべて丁寧に計測しメールでデータを送ってくださいました。おかげで再度足を運ぶことなく、引越し前にカーテンや家具を準備することができ本当にありがたかったです。店舗の事務員さん含め皆様、親切で明るい雰囲気が印象的でした。
(2021/01投稿)5.00
連絡をしたらすぐに対応して頂けました。担当の方は明るくハキハキして清潔感のある若い方でしたので話しやすく、自分の希望も親身になって聞いて下さり、担当の方が御自身の一人暮らしをした時の体験談や工夫したことなども話してくれたのでイメージしながら話し合いが出来ました。手続きをしてくれた事務員さんも説明が丁寧で感じが良かったです。内見の時も2階の角部屋が希望だと伝えたらすぐに押さえて頂けたり、南向きなので光が入りやすい事やご近所にどのような方が住んでいるなどの情報を教えてくれたりしたので安心出来ました。部屋のカーテンレールがなかった事や入口のインターホンが作動しなかったり、網戸がついていなかったり、外の街灯が点いてなかったのですが伝えたら迅速に対応して頂いたので入居して不便する事はありませんでした。入居してからもわからない事などは電話で丁寧に対応して頂いたりして助かりました。お得なサービスがあり家賃一か月分が無料だった所も良かったです。
(2019/04投稿)10:00〜17:30
東武鉄道東上線 若葉駅 : ここを押すと住所を確認することができます
火曜、水曜


6.6万円
管理費2,900円
1LDK / 42.37m²
2階 / 地上2階建
築17年 / 賃貸アパート


6.7万円
管理費2,900円
2LDK / 57.76m²
2階 / 地上2階建
築13年 / 賃貸アパート


5.3万円
管理費4,000円
1K / 29.75m²
2階 / 地上2階建
築6年 / 賃貸アパート


4.9万円
管理費3,500円
2K / 31.65m²
1階 / 地上3階建
築8年 / 賃貸アパート


5.7万円
管理費5,000円
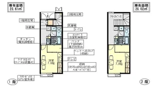
1K / 28.02m²
2階 / 地上2階建
築18年 / 賃貸アパート
4.2万円
管理費5,000円
1K / 22.35m²
2階 / 地上2階建
築17年 / 賃貸アパート
5.9万円
管理費5,000円
1K / 22.35m²
2階 / 地上2階建
築17年 / 賃貸アパート


5.7万円
管理費5,000円
1K / 23.61m²
1階 / 地上2階建
築18年 / 賃貸アパート
5.8万円
管理費5,000円
1K / 22.35m²
2階 / 地上2階建
築17年 / 賃貸アパート


5.7万円
管理費5,000円
1K / 28.02m²
2階 / 地上2階建
築18年 / 賃貸アパート


6.4万円
管理費6,000円
1LDK / 40.77m²
2階 / 地上2階建
築18年 / 賃貸アパート


5.5万円
管理費5,000円
1K / 22.35m²
1階 / 地上2階建
築17年 / 賃貸アパート


4.7万円
管理費6,000円
1R / 32.24m²
1階 / 地上2階建
築19年 / 賃貸アパート


5.6万円
管理費5,000円
1K / 23.61m²
1階 / 地上2階建
築18年 / 賃貸アパート


7.4万円
管理費3,300円
2LDK / 57.8m²
1階 / 地上3階建
築20年 / 賃貸マンション
4.9万円
管理費5,000円
1K / 20.7m²
2階 / 地上2階建
築20年 / 賃貸アパート
4.6万円
管理費5,000円
1K / 20.7m²
1階 / 地上2階建
築20年 / 賃貸アパート


5.6万円
管理費5,000円
1K / 25.34m²
2階 / 地上2階建
築15年 / 賃貸アパート


5.7万円
管理費5,000円
1K / 25.34m²
2階 / 地上2階建
築15年 / 賃貸アパート


4.5万円
管理費5,000円
1K / 20.4m²
1階 / 地上2階建
築15年 / 賃貸アパート


5.7万円
管理費4,600円
1R / 30.88m²
1階 / 地上4階建
築17年 / 賃貸マンション
4.5万円
管理費5,000円
1K / 23.71m²
1階 / 地上2階建
築20年 / 賃貸アパート


4.6万円
管理費5,000円
1K / 23.71m²
1階 / 地上2階建
築20年 / 賃貸アパート
現在0件保存されています。
あと50件保存することができます。
お気に入りページから保存した物件が確認できます。

削除しました。