



愛知県名古屋市中区新栄3丁目
名古屋市東山線/新栄町 徒歩7分
中央本線/千種 徒歩10分
名古屋市桜通線/車道 徒歩12分
中央本線/千種 徒歩10分
名古屋市桜通線/車道 徒歩12分
地上8階建 / 2017年06月 / 賃貸マンション
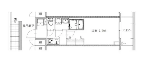
保証人不要オートロック宅配BOX防犯カメラ浴室暖房乾燥機追い焚きシステムキッチンガス2口グリル付温水洗浄暖房便座TVインターホン独立洗面台イオン千種徒歩8分コンビニ徒歩1分スーパー徒歩6分ゲオ徒歩6分
ただいま1人が検討中!
| 賃料 / 管理費 | 敷金 / 礼金 | 間取り / 面積 | 階数 部屋番号 | 方位 | 詳細を見る | |
|---|---|---|---|---|---|---|
| 6.15万円 / 5,800円 | 無料 / 8.0万円 | 1K / 28.8m² | 2階 ー | 南 | 詳細を見る |




























































