



福岡県大野城市瓦田1丁目
西鉄天神大牟田線/白木原 徒歩5分
鹿児島本線/大野城 徒歩10分
西鉄天神大牟田線/春日原 徒歩12分
鹿児島本線/大野城 徒歩10分
西鉄天神大牟田線/春日原 徒歩12分
地上3階建 / 1998年10月 / 賃貸マンション
交通&買い物便利なオートロック付2LDKマンション☆角部屋☆当店は西鉄春日原駅東口を出て徒歩20秒の立地で元気いっぱいに営業中! 知識豊富なスタッフが、親切・丁寧にお部屋探しをサポート致します(^^♪
ただいま1人が検討中!
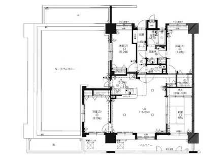
| 賃料 / 管理費 | 敷金 / 礼金 | 間取り / 面積 | 階数 部屋番号 | 方位 | 詳細を見る | |
|---|---|---|---|---|---|---|
| 7.5万円 / 3,000円 | 無料 / 15.0万円 | 2LDK / 50.63m² | 1階 ー | 南西 | 詳細を見る |




























































