



福岡県福岡市早良区飯倉5丁目
福岡市七隈線/金山 徒歩12分
福岡市七隈線/七隈 徒歩18分
福岡市七隈線/茶山 徒歩19分
福岡市営地下鉄七隈線 野芥 徒歩21分
福岡市七隈線/七隈 徒歩18分
福岡市七隈線/茶山 徒歩19分
福岡市営地下鉄七隈線 野芥 徒歩21分
地上2階建 / 2015年12月 / 賃貸アパート
福岡県内のお部屋探しは是非弊社へお任せください!インターネットに掲載されているお部屋の空室確認も全て行います(*^^*) メール、お、ご来店お待ちしております♪
ただいま3人が検討中!
| 賃料 / 管理費 | 敷金 / 礼金 | 間取り / 面積 | 階数 部屋番号 | 方位 | 詳細を見る | |
|---|---|---|---|---|---|---|
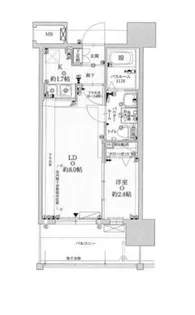
| 7.8万円 / 4,000円 | 無料 / 18.0万円 | 1LDK / 46.54m² | 2階 ー | 南 | 詳細を見る |




























































