



大阪府大阪市淀川区新高2丁目1番10号1-7
阪急電鉄神戸線/神崎川 徒歩8分
阪急電鉄宝塚線/三国 徒歩16分
阪急電鉄宝塚線/三国 徒歩16分
地上13階建 / 新築(2025年08月) / 賃貸マンション
敷金・礼金0円、仲介手数料無料!小型犬・猫飼育可! 2025年8月30日入居開始の新築マンション!スマートロック搭載、24時間ゴミ捨て場有り!インターネットWi-Fi無料で、犬猫飼育可能でカップルの同棲にもおすすめの物件です!
ただいま1人が検討中!
| 賃料 / 管理費 | 敷金 / 礼金 | 間取り / 面積 | 階数 部屋番号 | 方位 | 詳細を見る | |
|---|---|---|---|---|---|---|
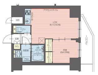
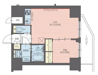
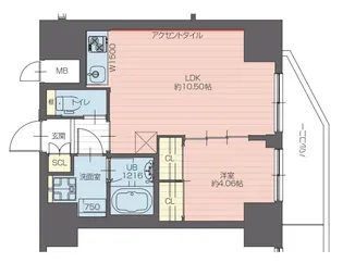
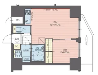
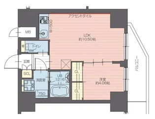
| 11.9万円 / 1.5万円 | 無料 / 無料 | 1LDK / 39.48m² | 4階 0401号室 | 東 | 詳細を見る |




























































