

6.0万円
管理費ー
JR山陽本線/東福山駅 歩48分
中国バス/東川口四丁目 歩5分
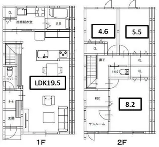
3DK / 46.92m²
2階 / 地上2階建
築29年 / 賃貸アパート
| 店舗名 | 株式会社いえなび ホームメイトFC福山春日店 |
|---|---|
| 住所 | 広島県福山市春日町1丁目1-35 |
| 定休日 | なし |
| 営業時間 | 9:30~18:30 |
| 交通 | JR山陽本線(神戸-門司) 東福山 徒歩14分 |
| 免許番号 | 国土交通大臣(3)第8538号 |
| 代表者名 | 後藤 良太 |
| 所属団体 | 社団法人全日本不動産協会 社団法人岡山県不動産協会 公益社団法人不動産保証協会 |
| TEL | 084-982-6434 |
| 初期費用分割 | 可 |

4.37
4.44
4.37
4.37
4.24
4.35
4.42
4.67
今回の不動産会社に決めた一番のポイントは、取り扱っている物件が希望に合っていたことです。今回の不動産会社でしか取り扱いがない物件で、築年数はやや経っていましたが、室内がとても綺麗に保たれていた点が大きな理由です。最初に問い合わせた際も、こちらの要望をすぐに断るのではなく、快く引き受けて検討してくださり、とても信頼できると感じました。何でも相談しやすい雰囲気があり、契約までに何度も電話やメールで確認させてもらいました。我が家の冷蔵庫が居室に入るか心配だった時には、実際に不動産会社の方が物件まで足を運び、玄関や廊下、居室の入口など、さまざまな場所の寸法を丁寧に測ってくださいました。その親身な対応にとても助けられ、安心して契約を進めることができました。やはり最初の対応が一番の決め手だったと、今でも感じています。不動産会社を選ぶ際には、対応の丁寧さや、こちらの立場に寄り添ってくれるかどうかが大切だと改めて実感しました。
(2025/07投稿)4.50
今回、上記の不動産屋にて契約した決め手の一つとして、数ある中から様々な選択肢を提示していただけた点です。元々はインターネットを使って物件を探しており、現在自分が入居している物件とは別の物件が気になって問い合わせをしました。目当ての物件があったとはいえ、ネットにはまだ掲示していない好条件の物件もあるかもしれないと思い、その他の物件の紹介もお願いしていたのですが、これが当たりでした。ネット上で物件を探す際にはどうしても家賃ばかりに着目してしまっていたのですが、もう少し手を伸ばせばさまざまな選択肢があるということに気づかせてくれました。また、物件選び初心者の私にも丁寧に分かりやすく説明いただけたのも、上記不動産屋で契約した理由の一つです。物件にはそれぞれ強みや弱みがあると思うのですが、様々な角度から私が納得いくまで説明をしてくださいました。そして、それぞれの物件情報と私の希望とを照らし合わせ、最適な物件選びのサポートをしてくださいました。上記の不動産屋で物件を選ぶことができて、本当に良かったと思います。
(2025/04投稿)4.67
不動産会社を選んだ理由は、担当してくださった山本店長さんの迅速な対応と、説明のわかりやすさが特に印象的だったからです。部屋の情報もとても詳しく、私たちが希望している部屋のイメージも理解していただき、家賃の相場観なども詳しく教えてくださいました。問い合わせした部屋の内見も当日すぐに案内していただき、実際に見にいけたことで部屋の中や駐車場・周りのお店や環境など確認することができたのがよかったです。物件の内見から契約に至るまで、スムーズに進めることができたのは、山本店長さんのおかげだと感じています。こちらの希望や不安な点にもすぐに確認のお電話をしてくださり、とにかく何事も早く丁寧に対応してくださり、安心して相談することができました。契約内容についても一つひとつ丁寧に説明していただけたため、不明点なく納得して契約を結ぶことができました。信頼できる担当者と出会えたことが、この不動産会社を選んだ最大の理由です。
(2025/04投稿)9:30~18:30
なし


6.0万円
管理費ー
3DK / 46.92m²
2階 / 地上2階建
築29年 / 賃貸アパート


6.2万円
管理費ー
2LDK / 48.05m²
2階 / 地上2階建
築32年 / 賃貸アパート


6.25万円
管理費2,900円
1SLDK / 50.96m²
2階 / 地上2階建
築2年 / 賃貸アパート


13.5万円
管理費5,000円
3LDK / 96.82m²
1-2階 / 地上2階建
新築 / 賃貸アパート


4.2万円
管理費3,000円
3DK / 59.28m²
1階 / 地上2階建
築27年 / 賃貸アパート


13.8万円
管理費5,000円
3LDK / 96.82m²
1-2階 / 地上2階建
新築 / 賃貸アパート


4.4万円
管理費3,500円
3DK / 66m²
1-2階 / 地上2階建
築36年 / 賃貸アパート


5.5万円
管理費2,900円
1LDK / 41.27m²
2階 / 地上3階建
築12年 / 賃貸アパート


5.0万円
管理費5,000円
2DK / 44.05m²
2階 / 地上2階建
築31年 / 賃貸アパート


3.9万円
管理費2,000円
1K / 24.75m²
1階 / 地上2階建
築22年 / 賃貸アパート


13.8万円
管理費5,000円
3LDK / 96.82m²
1-2階 / 地上2階建
新築 / 賃貸アパート


4.2万円
管理費3,000円
3DK / 59.28m²
1階 / 地上2階建
築27年 / 賃貸アパート


3.7万円
管理費2,000円
1K / 27.08m²
2階 / 地上2階建
築26年 / 賃貸アパート


12.8万円
管理費5,000円
3LDK / 96.82m²
2階 / 地上2階建
新築 / 賃貸アパート


13.0万円
管理費5,000円
3LDK / 96.82m²
2階 / 地上2階建
新築 / 賃貸アパート


5.8万円
管理費2,000円
3DK / 62.1m²
1階 / 地上2階建 / 1号室
築28年


6.1万円
管理費4,500円
1K / 22.35m²
2階 / 地上2階建 / 202号室
築18年 / 賃貸アパート


4.4万円
管理費4,500円
1K / 23.61m²
1階 / 地上2階建 / 106号室
築17年 / 賃貸アパート


4.6万円
管理費3,000円
1DK / 30.93m²
2階 / 201号室
築23年 / 賃貸アパート


5.6万円
管理費2,900円
1LDK / 44.15m²
2階 / 地上2階建 / 204号室
築9年 / 賃貸アパート


4.2万円
管理費4,000円
1K / 24.85m²
2階 / 地上2階建 / 202号室
築21年 / 賃貸アパート


6.1万円
管理費4,500円
1K / 22.35m²
2階 / 地上2階建 / 207号室
築20年 / 賃貸アパート


5.9万円
管理費4,500円
1K / 22.35m²
1階 / 地上2階建 / 108号室
築20年 / 賃貸アパート


5.8万円
管理費4,500円
1K / 22.35m²
1階 / 地上2階建 / 105号室
築20年 / 賃貸アパート


5.0万円
管理費2,000円
1K / 24.84m²
3階 / 地上3階建 / 3A号室
築9年 / 賃貸アパート


5.7万円
管理費6,500円
1K / 20.81m²
2階 / 地上3階建 / 206号室
築16年 / 賃貸アパート


5.3万円
管理費6,500円
1K / 20.81m²
1階 / 地上3階建 / 105号室
築16年 / 賃貸アパート


6.4万円
管理費2,800円
2LDK / 66.16m²
2階 / 地上3階建 / 204号室
築12年 / 賃貸アパート


6.3万円
管理費3,500円
1LDK / 42.61m²
2階 / 地上2階建 / 202号室
築11年 / 賃貸アパート
現在0件保存されています。
あと50件保存することができます。
お気に入りページから保存した物件が確認できます。

削除しました。