福岡県福岡市東区千早5丁目
西日本鉄道貝塚線/香椎宮前 徒歩2分
鹿児島本線/香椎 徒歩5分
鹿児島本線/千早 徒歩10分
鹿児島本線/香椎 徒歩5分
鹿児島本線/千早 徒歩10分
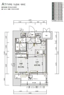
地上13階建 / 新築(2025年10月) / 賃貸マンション
【香椎宮前駅】徒歩2分/新築マンション建設中/ネット無料
ただいま2人が検討中!
| 賃料 / 管理費 | 敷金 / 礼金 | 間取り / 面積 | 階数 部屋番号 | 方位 | 詳細を見る | |
|---|---|---|---|---|---|---|
| 7.7万円 / 3,000円 | 無料 / 15.4万円 | 1LDK / 29.28m² | 4階 ー | 南 | 詳細を見る |




























































