



京都府京都市伏見区竹田中内畑町
地下鉄烏丸線/竹田駅 歩2分
近鉄京都線/竹田駅 歩2分
地下鉄烏丸線/くいな橋駅 歩15分
近鉄京都線/竹田駅 歩2分
地下鉄烏丸線/くいな橋駅 歩15分
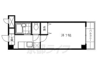
地上4階建 / 1997年03月 / 賃貸マンション
2022年春入居可能!オンライン案内・契約も可能です。
防犯モデル賃貸マンション認定物件。共用部など光触媒コーティングによる抗菌・抗ウイルス施工済で安心♪オートロック、防犯カメラ、TVモニター付ドアホン、鍵はカードキーといった防犯セキュリティ設備完備。
ただいま4人が検討中!
| 賃料 / 管理費 | 敷金 / 礼金 | 間取り / 面積 | 階数 部屋番号 | 方位 | 詳細を見る | |
|---|---|---|---|---|---|---|
| 4.6万円 / 5,000円 | 無料 / 5.0万円 | 1K / 22.96m² | 3階 ー | 西 | 詳細を見る |





















































