

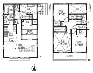
21.0万円
管理費ー
JR根岸線/港南台駅 歩32分
京急本線/杉田駅 歩32分
3LDK / 98.12m²
地上2階建
築6年
| 店舗名 | (株)ベイ・フロンティア |
|---|---|
| 住所 | 神奈川県横浜市神奈川区鶴屋町2-9ー22 日興パレス横浜206 |
| 定休日 | 夏季休暇、年末年始 |
| 営業時間 | 9:00~20:00 |
| 交通 | - |
| 免許番号 | 神奈川県知事(6)第22960号 |
| 代表者名 | - |
| 所属団体 | (公社)神奈川県宅地建物取引業協会会員 (公社)首都圏不動産公正取引協議会加盟 |
| TEL | 045-412-2500 |

3.00
3.00
3.00
3.00
-
3.00
3.00
3.00
今回お借りした物件を「スモッカ」のホームページで拝見し、とても気に入りました。本物件を取り扱っていた上記不動産会社に内見をお願いし結果として契約をお願いすることになりました。契約物件以外にも何件か内見をさせていただきました。担当者の方は各物件のメリット・デメリットを包み隠さずに説明してくださる正直な方という印象でした。店舗にお伺いした際はマンションの一室ということもありわかりにくい旨を事前にご連絡いただき丁寧に説明していただいていたので迷わずに伺うことができました。現地での待ち合わせにも柔軟に対応していただきとても助かりました。また契約物件では残置物の確認を丁寧に対応してくださり感謝しています。その他にもお願いをしたところ最終的に家賃を1万円安くしていただき仲介手数料も1.08ヶ月分から0.54ヶ月分に値下げしていただけました。入居後も車庫証明の取得の際は本契約の事情を警察の担当者に電話で説明いただき手続きがスムーズに進むようサポートいただきました。
(2019/01投稿)9:00~20:00
夏季休暇、年末年始


21.0万円
管理費ー
3LDK / 98.12m²
地上2階建
築6年


22.0万円
管理費ー
2SLDK / 87.76m²
地上2階建
築10年


24.2万円
管理費ー
4LDK / 100.6m²
地上2階建
築1年


20.8万円
管理費ー
3LDK / 93.66m²
地上2階建
新築


24.9万円
管理費1.0万円
2LDK / 56.07m²
6階 / 地上10階建
築16年 / 賃貸マンション


18.8万円
管理費ー
3LDK / 94.4m²
地上2階建
新築


21.5万円
管理費ー
4LDK / 107.94m²
1-2階 / 地上2階建
築24年


17.3万円
管理費ー
4LDK / 96.46m²
1-3階 / 地上3階建
築14年


27.0万円
管理費ー
3SLDK / 94.22m²
2階 / 地上4階建
築24年 / 賃貸マンション
現在0件保存されています。
あと50件保存することができます。
お気に入りページから保存した物件が確認できます。

削除しました。