



東京都新宿区市谷仲之町
都営新宿線/曙橋駅 歩5分
都営大江戸線/牛込柳町駅 歩10分
東京メトロ丸ノ内線/四谷三丁目駅 歩12分
都営大江戸線/牛込柳町駅 歩10分
東京メトロ丸ノ内線/四谷三丁目駅 歩12分
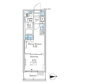
地下1地上5階建 / 新築(2025年09月) / 賃貸マンション
★仲介手数料0円★床暖房★角部屋★2面採光★食洗機★分譲
★お問い合わせ当日内見可能★オンライン内見可能★入居審査のご相談受付中★新宿区のお部屋探しはとらいち不動産にお任せ下さい!★★
ただいま1人が検討中!
| 賃料 / 管理費 | 敷金 / 礼金 | 間取り / 面積 | 階数 部屋番号 | 方位 | 詳細を見る | |
|---|---|---|---|---|---|---|
| 39.8万円 / 2.0万円 | 39.8万円 / 39.8万円 | 2LDK / 63.24m² | 4階 ー | 南西 | 詳細を見る |




























































