



都営新宿線/大島駅 歩10分
JR総武線/亀戸駅 歩14分
| 賃料 / 管理費 | 敷金 / 礼金 | 間取り / 面積 | 階数 部屋番号 | 方位 | 詳細を見る | |
|---|---|---|---|---|---|---|
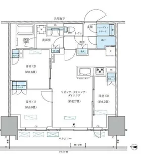
| 34.2万円 / 2.0万円 | 34.2万円 / 無料 | 3LDK / 64m² | 14階 ー | ー | 詳細を見る |
| 店舗名 | ゼロファシリティー(株) | |
|---|---|---|
| 住所 | 東京都墨田区錦糸4-11-5 | |
| 定休日 | 水曜日 | |
| 営業時間 | AM10:00~PM6:00 | |
| 交通 | - | |
| 免許番号 | 東京都知事(1)第98415号 | |
| 代表者名 | - | |
| 所属団体 | (公社)全日本不動産協会東京都本部会員 (公社)首都圏不動産公正取引協議会加盟 | |
| TEL | 03-6658-8066 |
※店舗所在地のアイコンは、情報提供元のより頂いた住所データを基に弊社にて設置しております。実際の所在地と多少異なる場合もございますので、お問合せ・来店の際には念の為、ご確認を頂けますようお願い申しあげます。

4.06
4.34
4.00
4.34
3.67
4.34
3.67
3.67
メールでのコンタクトが早く、また何回もやり取りさせていただき、細かいところまで納得のいくところまで調整いただいたたところがよかったです。当初は内見もできない状態から、調整いただき、こちらの要望、値段、間取り等、オーナーと直接調整いただき、かなりオーナーとの関係もしっかりしており、営業担当者の信頼性も高まりました。 いざ内見の日ですが、間取りの図面、メジャー等も用意していただきスムーズな内見ができました。残置物が多くその取扱いも細かい点まで調整いただきました。例えばエアコンであれば、どれだけ古さがあるのかは分かりにくいです、天井の狭い隙間に携帯電話をつっこみ写真を撮っていただき、通常では確認することができないような内容もみることができました。さすが熟練の営業マンだと感じました。 不動産会社事務所に訪問させていただいた際も丁寧に気遣い頂き感謝しております。当方が遅刻してしまったのですが、丁寧に電話でフォローいただきました。 また入居後もオーナーと積極的に調整頂き、快適な住まいを得ることができました。
(2025/07投稿)5.00
リビングラボ荻窪店で不動産を契約しましたが、その経験は非常に満足のいくものでした。まず、スタッフの皆さんがとても親切で、私たちのニーズや希望をしっかりと聞いてくれました。初めての不動産契約で不安も多かったのですが、丁寧に説明していただき、安心して手続きを進めることができました。 物件の紹介も非常にスムーズで、私たちの希望に合った物件をいくつか提案していただきました。特に、物件のメリットだけでなく、デメリットも正直に教えてくれた点が信頼できると感じました。内見の際も、細かい部分までチェックしてくれ、私たちが見落としがちな点も指摘してくれました。 契約手続きに関しても、書類の準備や手続きの流れをわかりやすく説明してくれたので、スムーズに進めることができました。また、契約後もアフターサポートが充実しており、何か問題があった際には迅速に対応してくれる点も非常に助かりました。 リビングラボ荻窪店のスタッフの皆さんのおかげで、理想の住まいを見つけることができ、本当に感謝しています。
(2024/07投稿)3.50
ゼロファシリティー株式会社は、錦糸町地区の物件を多く取り扱っており、錦糸町エリアにとても強い会社だと思いました。錦糸町周辺のスポットや隠れた名店などを教えていただき、これから住む上でほしい情報を向こうから話してくれたので住んだときのイメージがしやすかったです。 今回私が引っ越した物件はリノベーション物件だったのですが、どういう経緯でリノベーションするに至ったのかや、どうリノベーションしたからどういういところがいいとかその物件に住む上でのアドバイスなどもしていただけました。 また、自分の仕事の都合上、日中帯にゼロファシリティー株式会社さんと連絡を取るのが難しい状況だったのですが、夜遅くまでご対応いただけたのでとても助かりました。 必要書類がなかなか用意できずにいたのですが、快く待っていただけたのもとても助かりました。 全体を通してみても、とても親切で引っ越すうえでの様々なアドバイスもしていただけたので大変満足しています。
(2018/05投稿)AM10:00~PM6:00
水曜日




| 賃料 / 管理費 | 敷金 / 礼金 | 間取り / 面積 | 階数 部屋番号 | 方位 | 詳細を見る | |
|---|---|---|---|---|---|---|
| 34.2万円 / 2.0万円 | 34.2万円 / 無料 | 3LDK / 64m² | 14階 ー | ー | 詳細を見る |




| 賃料 / 管理費 | 敷金 / 礼金 | 間取り / 面積 | 階数 部屋番号 | 方位 | 詳細を見る | |
|---|---|---|---|---|---|---|
| 25.0万円 / 1.5万円 | 25.0万円 / 25.0万円 | 2LDK / 61.22m² | 13階 ー | 西 | 詳細を見る |




| 賃料 / 管理費 | 敷金 / 礼金 | 間取り / 面積 | 階数 部屋番号 | 方位 | 詳細を見る | |
|---|---|---|---|---|---|---|
| 26.6万円 / 1.5万円 | 26.6万円 / 無料 | 2LDK / 52.78m² | 9階 ー | 南 | 詳細を見る |




| 賃料 / 管理費 | 敷金 / 礼金 | 間取り / 面積 | 階数 部屋番号 | 方位 | 詳細を見る | |
|---|---|---|---|---|---|---|
| 20.6万円 / 1.7万円 | 20.6万円 / 20.6万円 | 1LDK / 50.07m² | 10階 ー | 南 | 詳細を見る |




| 賃料 / 管理費 | 敷金 / 礼金 | 間取り / 面積 | 階数 部屋番号 | 方位 | 詳細を見る | |
|---|---|---|---|---|---|---|
| 21.7万円 / 1.5万円 | 21.7万円 / 21.7万円 | 1LDK / 48.28m² | 3階 ー | 南 | 詳細を見る |





| 賃料 / 管理費 | 敷金 / 礼金 | 間取り / 面積 | 階数 部屋番号 | 方位 | 詳細を見る | |
|---|---|---|---|---|---|---|
| 27.2万円 / 1.8万円 | 27.2万円 / 無料 | 2LDK / 51.2m² | 14階 ー | ー | 詳細を見る |




| 賃料 / 管理費 | 敷金 / 礼金 | 間取り / 面積 | 階数 部屋番号 | 方位 | 詳細を見る | |
|---|---|---|---|---|---|---|
| 23.5万円 / 1.5万円 | 23.5万円 / 無料 | 1SLDK / 50.02m² | 6階 ー | 東 | 詳細を見る |




| 賃料 / 管理費 | 敷金 / 礼金 | 間取り / 面積 | 階数 部屋番号 | 方位 | 詳細を見る | |
|---|---|---|---|---|---|---|
| 23.0万円 / 2.0万円 | 23.0万円 / 無料 | 2LDK / 55.92m² | 1階 ー | 南東 | 詳細を見る |




| 賃料 / 管理費 | 敷金 / 礼金 | 間取り / 面積 | 階数 部屋番号 | 方位 | 詳細を見る | |
|---|---|---|---|---|---|---|
| 22.5万円 / 2.0万円 | 22.5万円 / 無料 | 2DK / 45.08m² | 4階 ー | 南 | 詳細を見る |




| 賃料 / 管理費 | 敷金 / 礼金 | 間取り / 面積 | 階数 部屋番号 | 方位 | 詳細を見る | |
|---|---|---|---|---|---|---|
| 24.7万円 / 1.2万円 | 24.7万円 / 無料 | 1SLDK / 46.74m² | 2階 ー | ー | 詳細を見る |





| 賃料 / 管理費 | 敷金 / 礼金 | 間取り / 面積 | 階数 部屋番号 | 方位 | 詳細を見る | |
|---|---|---|---|---|---|---|
| 28.0万円 / 330円 | 28.0万円 / 28.0万円 | 4DK / 139.86m² | 6階 ー | ー | 詳細を見る |
お気に入り物件に
追加しました
現在0件保存されています
残り50件追加することができます
削除しました。