



東京都千代田区九段南3
都営新宿線/市ケ谷駅 歩7分
東京メトロ東西線/九段下駅 歩10分
東京メトロ半蔵門線/半蔵門駅 歩10分
東京メトロ東西線/九段下駅 歩10分
東京メトロ半蔵門線/半蔵門駅 歩10分
地上12階建 / 2008年04月 / 賃貸マンション
人気の千代田区アドレス、ハイセンスなデザイン性高い物件です
素敵な新居探しとお住替えをトータルサポート。高級物件に住みたい・初期費用を抑えたい・審査に通るのか不安。不動産を知り尽くしたプロ集団が即レス対応でお客様がご納得いくまでとことんお付き合い致します。
ただいま2人が検討中!
| 賃料 / 管理費 | 敷金 / 礼金 | 間取り / 面積 | 階数 部屋番号 | 方位 | 詳細を見る | |
|---|---|---|---|---|---|---|
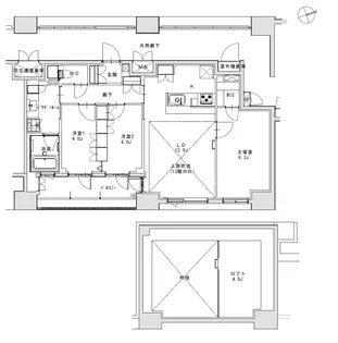
| 27.0万円 / ー | 27.0万円 / 27.0万円 | 1LDK / 56.66m² | 11階 ー | 北東 | 詳細を見る |
















































