



東京都豊島区南長崎4
都営大江戸線/落合南長崎駅 歩4分
西武池袋線/東長崎駅 歩12分
西武池袋線/椎名町駅 歩14分
西武池袋線/東長崎駅 歩12分
西武池袋線/椎名町駅 歩14分
地上4階建 / 2018年03月 / 賃貸マンション
初期費用の分割・クレジットカード決済可能です!
オンラインにて申込みから契約までのお手続きも可能です。入居日が合わずにお悩みの方、契約金のお見積もりや室内写真のご要望などお気軽にお問い合わせください。初期費用の分割払いも承ります。
ただいま6人が検討中! 人気上昇中!注目の物件です!
| 賃料 / 管理費 | 敷金 / 礼金 | 間取り / 面積 | 階数 部屋番号 | 方位 | 詳細を見る | |
|---|---|---|---|---|---|---|
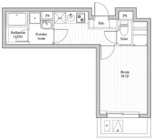
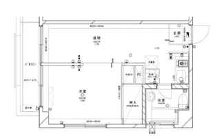
| 7.5万円 / 1.0万円 | 7.5万円 / 7.5万円 | 1K / 20m² | 3階 ー | 東 | 詳細を見る |























































