

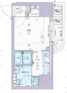
8.5万円
管理費3,000円
都営三田線/西巣鴨駅 歩10分
東武東上線/北池袋駅 歩12分
1K / 19.55m²
3階 / 地上4階建
築21年 / 賃貸マンション
| 店舗名 | (株)サークルフォーレント |
|---|---|
| 住所 | 東京都豊島区巣鴨1-11-5 |
| 定休日 | 第1第3火曜日、水曜日 |
| 営業時間 | 10:00~19:00 |
| 交通 | - |
| 免許番号 | 国土交通大臣(3)第8305号 |
| 代表者名 | - |
| 所属団体 | (公社)全日本不動産協会東京都本部会員 (公社)首都圏不動産公正取引協議会加盟 |
| TEL | 03-5978-3307 |

4.06
4.67
3.34
3.67
3.34
4.67
4.67
4.50
担当者や担当者の先輩がいろいろ親身になって対応してくださった。 見た物件の写真を撮り忘れたので困っていたら担当さんがわざわざ物件まで行ってくださって、写真をたくさん撮ってメールくださった。 見てなかった部屋の細かい部分もあり、ベランダの物干し竿の長さやカーテンのサイズやキッチンのサイズ、トイレの幅も測って来てくださった。 おかげさまで入居するまでにいろいろなものが準備できて、入居と同時に住める部屋にできた。 周辺の人気のお店も、通りがかりに何件か案内してくださって、住んだ時の便利さが想像できた。 駅からも近く行きやすい不動産屋さんだった。 担当さんがとてもお話が上手だったので楽しく部屋探しができた。 接客が向いている担当さんでした。 物件は古いが、駅近くでスーパーも充実しており駅周辺で割と用事が済ませられるのがとても魅力的で断る理由がなかった。 いい物件も他にもあって古くから地元に密着されている不動産屋さんなんだろうと思った。
(2022/02投稿)3.50
基本的にメールでのやりとりがほとんどでしたが、返信が早くて助かりました。 たいていの問い合わせメールにその日のうちに返事をいただけていました。 内見が出来ない物件だったため、外観だけ見学にいかせてもらいましたが、図面に書かれた条件には自転車置き場無し、となっていましたが、実際に見に行くと自転車置き場らしき場所があったりと、少し資料と差があったため問い合わせると、すぐに確認していただけ、資料の修正をしていただきました。 全体的に対応が早いです。 退去前の物件だったため、中の写真ではわかりづらい部分があり、他の部屋の写真などを出してくれたので、イメージすることが出来ました。 店舗は巣鴨駅からの大通りに面していて、とても明るくて入りやすいです。不動産屋は圧迫感を感じて入りづらいと感じるところが多いのですが、少し離れたところからでも中の様子が見える作りになっていることもあり、入るのに抵抗がなかったです。みなさんの口調も丁寧で良かったです。
(2020/08投稿)4.17
2年間住んでいたマンションの更新期間となったため、更新をせずに新しいマンションへの引っ越しを検討していました。あまり期間がない中で、新築の高層階マンション限定と決めていたので、なかなか条件が合わず、毎日焦りながら探していました。仕事が休みの日や空いている時間を使い、インターネットで物件を検索をしたり、実際に気になる街などに見に行ったりしていたところ、インターネットでこちらの物件を見つけ、5万円のお祝い金ももらえるということでしたので、こちらのサイトを利用して問い合わせしました。後日、実際に店舗へ伺いましたところ、担当者の方は話やすい方でとても良心的で、最終的になかなか決心がつかなかったのですが、こちらが納得するまで、内見にも2度車で連れて行ってくれました。正直、場所も自分が希望していたところではなく、部屋は予定していたよりもかなり狭く、家賃も少々予算をオーバーしていたのですが、とても親切に対応していただき、ここをお断りしたら、期間中に次のマンションは見つからないような気がして、信頼できそうな会社と担当者さんだと感じ、こちらの会社に契約をお願いすることにした次第です。
(2018/09投稿)10:00~19:00
第1第3火曜日、水曜日


8.5万円
管理費3,000円
1K / 19.55m²
3階 / 地上4階建
築21年 / 賃貸マンション


9.2万円
管理費6,000円
1K / 22.9m²
2階 / 地上5階建
築12年 / 賃貸マンション


9.3万円
管理費5,000円
1K / 20.46m²
1階 / 地上8階建
築12年 / 賃貸マンション


12.0万円
管理費1.2万円
1DK / 27.27m²
3階 / 地上4階建
築4年 / 賃貸マンション


17.7万円
管理費1.0万円
2LDK / 40.24m²
2階 / 地上5階建
築1年 / 賃貸マンション


14.3万円
管理費1.0万円
1LDK / 30.18m²
5階 / 地上5階建
築1年 / 賃貸マンション


9.4万円
管理費1.5万円
1K / 21.75m²
12階 / 地上13階建
築23年 / 賃貸マンション
11.7万円
管理費1.2万円
2K / 25.5m²
2階 / 地上4階建
築4年 / 賃貸マンション


6.5万円
管理費3,000円
1K / 14.3m²
2階 / 地上3階建
築18年 / 賃貸マンション


13.2万円
管理費8,000円
1LDK / 30.69m²
3階 / 地上3階建
新築 / 賃貸アパート


13.1万円
管理費8,000円
1LDK / 30.69m²
2階 / 地上3階建
新築 / 賃貸アパート


13.0万円
管理費8,000円
1LDK / 30.69m²
1階 / 地上3階建
新築 / 賃貸アパート


15.2万円
管理費5,000円
1LDK / 47.47m²
3階 / 地上3階建
築8年 / 賃貸マンション


5.0万円
管理費ー
1K / 17.94m²
2階 / 地上2階建
築39年 / 賃貸アパート


5.0万円
管理費ー
1K / 17.94m²
2階 / 地上2階建
築39年 / 賃貸アパート


22.1万円
管理費1.8万円
2DK / 41.16m²
10階 / 地上12階建
新築 / 賃貸マンション


16.6万円
管理費1.2万円
1DK / 30.39m²
6階 / 地上12階建
新築 / 賃貸マンション


16.8万円
管理費1.2万円
1DK / 30.39m²
10階 / 地上12階建
新築 / 賃貸マンション
17.0万円
管理費1.2万円
1DK / 30.21m²
12階 / 地上12階建
新築 / 賃貸マンション


22.7万円
管理費1.8万円
2DK / 41.16m²
12階 / 地上12階建
新築 / 賃貸マンション


8.3万円
管理費1.0万円
1R / 22.19m²
12階 / 地上14階建
築14年 / 賃貸マンション


6.0万円
管理費6,000円
1K / 16.56m²
2階 / 地上2階建
築31年 / 賃貸アパート
現在0件保存されています。
あと50件保存することができます。
お気に入りページから保存した物件が確認できます。

削除しました。