



神奈川県横浜市神奈川区神大寺1丁目
横浜市ブルーライン/三ツ沢下町 徒歩12分
東急東横線/反町 徒歩23分
横浜市ブルーライン/三ツ沢上町 徒歩16分
東急東横線/反町 徒歩23分
横浜市ブルーライン/三ツ沢上町 徒歩16分
地上5階建 / 2006年03月 / 賃貸マンション
共用部には敷地内ごみ置き場・エレベータなどが揃っております。室内設備はBS・エアコン・システムキッチンなど大変充実しております。ご利用可能な駅が2つあり、行き先に応じて乗車駅の使い分けができます。あると嬉しい設備として、ニーズが高いのが脱衣所です。新生活を始めるためのお住まいを探すなら、当社にお任せ下さい。初めての方でも安心していただけるよう、全力でサポートいたします。お気軽に当社へご連絡下さい。
ただいま1人が検討中!
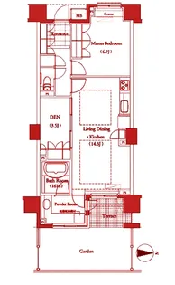
| 賃料 / 管理費 | 敷金 / 礼金 | 間取り / 面積 | 階数 部屋番号 | 方位 | 詳細を見る | |
|---|---|---|---|---|---|---|
| 8.9万円 / 5,000円 | 8.9万円 / 8.9万円 | 1DK / 32.35m² | 3階 ー | 南 | 詳細を見る |






















































