



神奈川県大和市福田
小田急江ノ島線/高座渋谷駅 歩17分
小田急江ノ島線/桜ヶ丘駅 歩16分
相鉄いずみ野線/いずみ野駅 歩52分
小田急江ノ島線/桜ヶ丘駅 歩16分
相鉄いずみ野線/いずみ野駅 歩52分
地上2階建 / 建築中(2026年02月) / 賃貸アパート
◆2026年2月完成予定の新築◆敷地内駐車場1台無料◆
◆初期費用・最安宣言◆お部屋探しは【いえらび】にお任せ下さい◆ネットで掲載している賃貸物件全てご紹介可能です(他社様掲載物件含む)◆家賃交渉、審査等なんでもご相談ください◆クレジット決済可能◆
ただいま1人が検討中!
| 賃料 / 管理費 | 敷金 / 礼金 | 間取り / 面積 | 階数 部屋番号 | 方位 | 詳細を見る | |
|---|---|---|---|---|---|---|
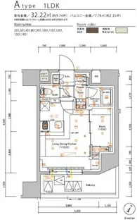
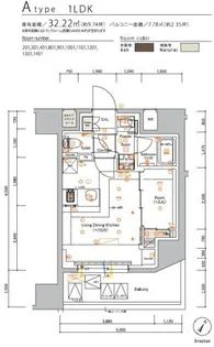
| 15.0万円 / 4,000円 | 15.0万円 / 15.0万円 | 3LDK / 74.1m² | 1-2階 ー | 北西 | 詳細を見る |


















































