



東京都練馬区春日町2
東京メトロ有楽町線/平和台駅 歩10分
都営大江戸線/練馬春日町駅 歩12分
東武東上線/下赤塚駅 歩20分
都営大江戸線/練馬春日町駅 歩12分
東武東上線/下赤塚駅 歩20分
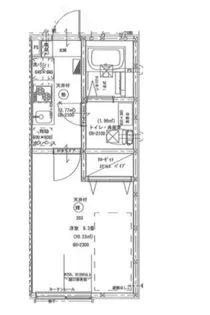
地上2階建 / 2001年01月 / 賃貸アパート
仲介手数料(賃料の1.10ヵ月)の50%OFF対象物件!
【クレジットカードで分割も可能】【家具・家電付きプラン有】【駐車場完備。遠方の方も車でご来店可能】迅速にご対応可能なおでのお問い合わせがおススメです♪(担当者直通)
ただいま1人が検討中!
| 賃料 / 管理費 | 敷金 / 礼金 | 間取り / 面積 | 階数 部屋番号 | 方位 | 詳細を見る | |
|---|---|---|---|---|---|---|
| 6.2万円 / 3,000円 | 無料 / 無料 | 1R / 22.35m² | 2階 ー | ー | 詳細を見る |








































