



東京都新宿区西五軒町
東京メトロ東西線/神楽坂駅 歩7分
東京メトロ有楽町線/江戸川橋駅 歩6分
JR中央線/飯田橋駅 歩15分
東京メトロ有楽町線/江戸川橋駅 歩6分
JR中央線/飯田橋駅 歩15分
地上6階建 / 1992年02月 / 賃貸マンション
神楽坂駅 徒歩7分!! ★リノベーション物件!!
神楽坂駅は、新宿や大手町、日本橋、九段下など都心主要エリアへ短時間で移動できる利便性があり、駅周辺は、大人の隠れ家ともいえるレストランやカフェが点在し、石畳の路地裏や料亭など情緒あふれる街並みです。
ただいま2人が検討中!
| 賃料 / 管理費 | 敷金 / 礼金 | 間取り / 面積 | 階数 部屋番号 | 方位 | 詳細を見る | |
|---|---|---|---|---|---|---|
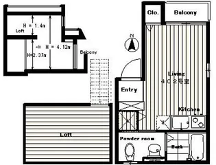
| 9.8万円 / 8,000円 | 9.8万円 / 9.8万円 | 1R / 23.22m² | 4階 ー | 北東 | 詳細を見る |






















































