



東京都豊島区池袋1
JR山手線/池袋駅 歩9分
東京メトロ丸ノ内線/池袋駅 歩9分
東武東上線/北池袋駅 歩10分
東京メトロ丸ノ内線/池袋駅 歩9分
東武東上線/北池袋駅 歩10分
地上14階建 / 2012年03月 / 賃貸マンション
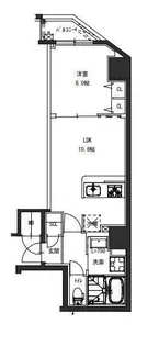
システムキッチンがあり、お料理と後片付けが手早くできます
浴室は湿気が多くカビが増殖しやすいですが、この物件では浴室乾燥機でしっかり乾燥させることでカビの増殖を抑えられます。BS・CS加入で快適なテレビ生活が送れます。
ただいま1人が検討中!
| 賃料 / 管理費 | 敷金 / 礼金 | 間取り / 面積 | 階数 部屋番号 | 方位 | 詳細を見る | |
|---|---|---|---|---|---|---|
| 9.5万円 / 1.5万円 | 無料 / 9.5万円 | 1K / 20.63m² | 13階 ー | ー | 詳細を見る |




























































