



東京都中央区佃2
東京メトロ有楽町線/月島駅 歩3分
JR京葉線/越中島駅 歩12分
東京メトロ東西線/門前仲町駅 歩16分
JR京葉線/越中島駅 歩12分
東京メトロ東西線/門前仲町駅 歩16分
地上9階建 / 新築(2025年04月) / 賃貸マンション
★新築★仲介手数料無料★FR1ヶ月★ネット使用料無料★WIC
★お問い合わせ当日内見可能★オンライン内見可能★入居審査のご相談受付中★中央区のお部屋探しはとらいち不動産にお任せ下さい!★★
ただいま1人が検討中!
| 賃料 / 管理費 | 敷金 / 礼金 | 間取り / 面積 | 階数 部屋番号 | 方位 | 詳細を見る | |
|---|---|---|---|---|---|---|
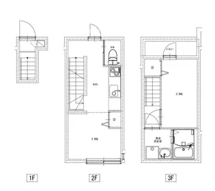
| 14.5万円 / 2.0万円 | 14.5万円 / 14.5万円 | 1DK / 25.74m² | 6階 ー | 北西 | 詳細を見る |




























































