



東京都江東区森下3
都営大江戸線/森下駅 歩5分
都営新宿線/森下駅 歩5分
都営新宿線/菊川駅 歩5分
都営新宿線/森下駅 歩5分
都営新宿線/菊川駅 歩5分
地上10階建 / 新築(2025年07月) / 賃貸マンション
エアコン付き物件なので、湿度を下げることができます
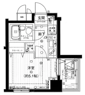
室内設備は浴室乾燥機・洗面所独立など豊富に揃っており、過ごしやすいお部屋になっております。共用部にはゴミ出し24時間OK・宅配ボックスなどが揃っております。
| 賃料 / 管理費 | 敷金 / 礼金 | 間取り / 面積 | 階数 部屋番号 | 方位 | 詳細を見る | |
|---|---|---|---|---|---|---|
| 13.8万円 / 1.0万円 | 13.8万円 / 無料 | 1K / 25.11m² | 4階 ー | 北 | 詳細を見る |




























































