


6.8万円
管理費ー
敷13.6万円礼6.8万円
ハピラインふくい/福井駅 歩39分
京福バス/加茂河原3 歩1分
京福バス/加茂河原3 歩1分
福井県福井市加茂河原3
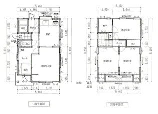
4DK / 84.46m²
地上2階建
築24年
ただいま 5人 が検討中!
店舗名 | 社不動産 |
---|---|
住所 | 福井県福井市加茂河原3-1-11 |
定休日 | - |
営業時間 | - |
交通 | - |
免許番号 | 福井県知事(1)第1731号 |
代表者名 | - |
所属団体 | (公社)福井県宅地建物取引業協会会員 北陸不動産公正取引協議会加盟 |
TEL | 0776-50-3690 |
6.8万円
管理費ー
4DK / 84.46m²
地上2階建
築24年
現在0件保存されています。
あと50件保存することができます。
お気に入りページから保存した物件が確認できます。
削除しました。