



東京都港区高輪2
都営浅草線/泉岳寺駅 歩2分
JR山手線/高輪ゲートウェイ駅 歩7分
都営三田線/白金高輪駅 歩12分
JR山手線/高輪ゲートウェイ駅 歩7分
都営三田線/白金高輪駅 歩12分
地下1地上12階建 / 2005年08月 / 賃貸マンション
オンラインで申込から契約手続き、LINEでのご相談も可能です
当物件は初期費用分割払い可(クレジットカード決済も可)/お客様のご希望に合わせた方法(店頭、オンライン等)で物件をご提案いたします。初期費用のお見積りや入居希望日のご相談もお気軽にお問い合わせください
ただいま2人が検討中!
| 賃料 / 管理費 | 敷金 / 礼金 | 間取り / 面積 | 階数 部屋番号 | 方位 | 詳細を見る | |
|---|---|---|---|---|---|---|
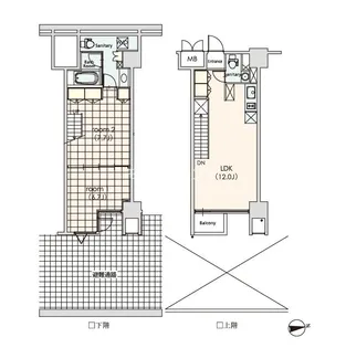
| 19.5万円 / 1.0万円 | 19.5万円 / 19.5万円 | 1K / 43.64m² | 5階 ー | 南 | 詳細を見る |

























































