



埼玉県所沢市東狭山ケ丘1丁目
西武池袋・豊島線/狭山ヶ丘 徒歩6分
西武池袋・豊島線/武蔵藤沢 徒歩17分
西武池袋・豊島線/小手指 徒歩36分
西武池袋・豊島線/武蔵藤沢 徒歩17分
西武池袋・豊島線/小手指 徒歩36分
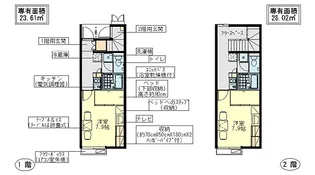
地上3階建 / 建築中(2026年03月) / 賃貸アパート
お客様のお部屋探しを全力でサポート致します♪
| 賃料 / 管理費 | 敷金 / 礼金 | 間取り / 面積 | 階数 部屋番号 | 方位 | 詳細を見る | |
|---|---|---|---|---|---|---|
| 6.0万円 / 3,000円 | 無料 / 6.0万円 | 1K / 25.18m² | 3階 ー | 南 | 詳細を見る |































