



東京都豊島区池袋3
JR山手線/池袋駅 歩8分
東武東上線/北池袋駅 歩16分
東京メトロ副都心線/要町駅 歩14分
東武東上線/北池袋駅 歩16分
東京メトロ副都心線/要町駅 歩14分
地上7階建 / 2020年02月 / 賃貸マンション
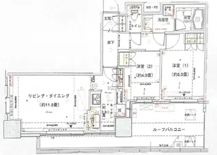
築浅メゾネットタイプの賃貸マンション 防犯設備が充実
東京の高級賃貸・ファミリー物件の仲介・管理・売買をお探しの方は、高級物件専門のプライムコーポレーションへ/海外転勤・国内転勤・入居審査・条件交渉等お任せ下さい/オンライン内見・オンライン契約対応可能
ただいま2人が検討中!
| 賃料 / 管理費 | 敷金 / 礼金 | 間取り / 面積 | 階数 部屋番号 | 方位 | 詳細を見る | |
|---|---|---|---|---|---|---|
| 29.5万円 / 1.5万円 | 29.5万円 / 29.5万円 | 2LDK / 80.28m² | 6階 ー | 東 | 詳細を見る |

























































