ディームス渋谷本町[4階]
情報公開日:2025/12/11(残り15日)
次回更新日は2025/12/25
物件画像
画像提供元:SEG(株)広尾本店
この物件のタグ
この物件にお問い合わせ
ディームス渋谷本町[4階]の物件情報
| 賃料/管理費等 |
28.9万円(管理費等 1.5万円)
|
||
|---|---|---|---|
| 敷金 | 28.9万円 | 礼金 | 無料 |
| 種別/構造 | マンション/RC | 築年月 | 2019年03月 |
| 所在地 |
東京都渋谷区本町3
|
||
| 主要交通機関 |
都営大江戸線/西新宿五丁目駅 歩4分 東京メトロ丸ノ内線/中野新橋駅 歩14分 京王新線/初台駅 歩14分 |
||
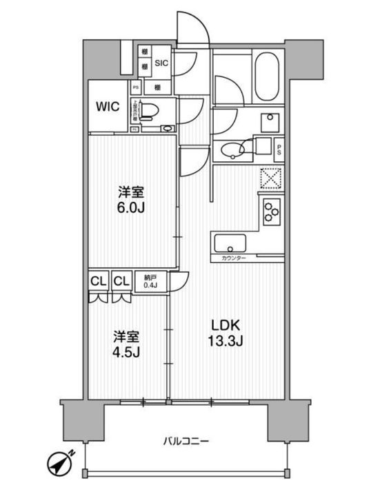
| 間取り | 2LDK | 面積 | 54.66m² |
| 間取り詳細 | 洋6 洋4.5 LDK13.3 | 方位 | 南東 |
| 階数/部屋番号 | 4階/地上14階建 | 駐車場 | 近隣駐車場 近隣50m45000円 |
| 特徴 |
|
||
| 設備/条件 | バストイレ別、バルコニー、エアコン、ガスコンロ対応、クロゼット、フローリング、TVインターホン、浴室乾燥機、オートロック、室内洗濯置、陽当り良好、シューズボックス、システムキッチン、南向き、追焚機能浴室、温水洗浄便座、エレベーター、洗面所独立、洗面化粧台、2口コンロ、駐輪場、宅配ボックス、光ファイバー、外壁タイル張り、3口以上コンロ、対面式キッチン、防犯カメラ、オートバス、ウォークインクロゼット、保証人不要、二人入居相談、全居室フローリング、エアコン2台、ネット使用料不要、床暖房、食器洗乾燥機、エアコン全室、24時間換気システム、L字型キッチン、エアコン3台、南面2室、南面リビング、敷地内ごみ置き場、東南向き、都市ガス、南面バルコニー、シューズWIC、初期費用カード決済可 | ||
| 備考 |
通勤管理/※違約金:契約開始日より1年未満の解約は家賃+共益費の1ヶ月分 ※再契約:双方の合意により再契約相談可。新賃料1ヶ月分を再契約料として支払うものとする。 ※同タイプ・別階の内観写真を掲載している場合があります。図面と現況が異なる場合は現況を優先いたします。 合計3.85万円(内訳:鍵交換:24200円 Goodプレミアムα:12100円 Goodプレミアムα登録料:2200円) 清掃費:74800円 エアコンクリーニング代:36300円 二人入居可 定期借家 2年 保証会社利用必 ◆エポス◆ 賃料総額の60%、月次保証料:賃料総額の1% 、更新料なし ※物件に関する備考は各社異なりますのでご確認のうえお問い合わせください。 |
||
| 契約期間 | お問い合わせください。 | ||
|---|---|---|---|
| 入居可能時期 |
即入居可
|
||
| 初期費用 |
お問い合わせください。
|
||
| 住宅保険 | 2.8万円2年 | 現状空室状況 | お問い合わせください。 |
情報提供元:SEG(株)広尾本店
画像提供元:SEG(株)広尾本店
※各種情報と現状に差異がある場合は、現状優先となります。取り扱い不動産会社が複数ある場合は、住宅保険等、一部条件が異なる場合もございますので、取扱店舗までご確認下さいませ。
この物件にお問い合わせ
周辺施設
| コンビニ |
ローソン 西新宿四丁目 ファミリーマート 西新宿五丁目店 |
|||
|---|---|---|---|---|
| スーパー |
miniピアゴ渋谷本町3丁目店 サミットストア渋谷本町店 |
|||
| ドラッグストア |
トモズ 西新宿五丁目店 ハラダ薬局 |
|||
| 保育園 |
さくらさくみらい弥生町 |
|||
|---|---|---|---|---|
| 幼稚園 |
たから幼稚園 |
|||
| 小学校 |
渋谷区立 渋谷本町学園 |
|||
| 中学校 |
渋谷区立 渋谷本町学園 |
|||
※周辺情報は不動産会社から提供された情報ではなく、弊サービスで独自に収集した情報です。
担当者のオススメポイント!
ネット無料☆追い炊き・浴室乾燥など設備充実☆
☆初期費用クレカ決済もご相談ください!!◎ピアホームは港区・渋谷区特化型☆ オンライン内見・契約実施中!
ディームス渋谷本町[4階]の取扱会社情報 9件
| 取扱会社(1) | SEG(株)広尾本店 (情報提供媒体:SUUMO) | ||
|---|---|---|---|
| 住所 | 東京都渋谷区広尾5-3-13 Barbizon86 6階 | ||
| 電話番号 | 03-6721-6950 | 免許番号 | 東京都知事(2)第103362号 |
| 取引態様 | 仲介 | 物件管理番号 |
100450816623 ※お問い合わせの際には、担当者へ物件管理番号をお伝えください。 |
| 物件に関する情報 |
物件の所在地 : 東京都渋谷区本町3 /
交通の利便 : 都営大江戸線/西新宿五丁目駅 歩4分、東京メトロ丸ノ内線/中野新橋駅 歩14分、京王新線/初台駅 歩14分 /
面積 : 54.66m² /
築年月 : 2019年03月 /
賃料 : 28.9万円 /
管理費又は共益費等 : 1.5万円 /
礼金等 : 無料 /
敷金 : 1ヶ月、保証金等 : -、 償却、敷引 : - /
住宅総合保険等の損害保険料 : 2.8万円2年 /
その他 : 通勤管理/※違約金:契約開始日より1年未満の解約は家賃+共益費の1ヶ月分 ※再契約:双方の合意により再契約相談可。新賃料1ヶ月分を再契約料として支払うものとする。 ※同タイプ・別階の内観写真を掲載している場合があります。図面と現況が異なる場合は現況を優先いたします。
合計3.85万円(内訳:鍵交換:24200円 Goodプレミアムα:12100円 Goodプレミアムα登録料:2200円)
清掃費:74800円 エアコンクリーニング代:36300円
二人入居可
定期借家 2年
保証会社利用必 ◆エポス◆ 賃料総額の60%、月次保証料:賃料総額の1% 、更新料なし
/ 駐車場 : 近隣駐車場
近隣50m45000円
ネット無料☆追い炊き・浴室乾燥など設備充実☆
☆初期費用クレカ決済もご相談ください!!◎ピアホームは港区・渋谷区特化型☆ オンライン内見・契約実施中! |
||
| 所属団体 |
(公社)東京都宅地建物取引業協会会員 (公社)首都圏不動産公正取引協議会加盟 |
||
| 取扱会社(2) | TR(株)ナビホーム赤坂店 (情報提供媒体:SUUMO) | ||
|---|---|---|---|
| 住所 | 東京都港区赤坂2-19-4 関ビル4階 | ||
| 電話番号 | 03-5544-9630 | 免許番号 | 東京都知事(1)第109457号 |
| 取引態様 | 仲介 | 物件管理番号 |
100469152555 ※お問い合わせの際には、担当者へ物件管理番号をお伝えください。 |
| 物件に関する情報 |
物件の所在地 : 東京都渋谷区本町3 /
交通の利便 : 都営大江戸線/西新宿五丁目駅 歩7分、都営大江戸線/中野坂上駅 歩15分 /
面積 : 54.66m² /
築年月 : 2019年02月 /
賃料 : 28.9万円 /
管理費又は共益費等 : 1.5万円 /
礼金等 : 無料 /
敷金 : 1ヶ月、保証金等 : -、 償却、敷引 : - /
住宅総合保険等の損害保険料 : 要 /
その他 : 鍵交換費用24 200円 税込、Goodプレミアムα(24Hサポートのみ)11 000円 税抜(入居時)、住宅総合保険(フレックス)28 000円 非課税(入居時)、Goodプ レミアムα登録料2 000円/税抜(入居時)
合計3.63万円(内訳:Goodプレミアムα(24Hサポートのみ1.21万円 鍵交換代2.42万円)
更新料 289000円
定期借家 2年
/ 駐車場 : 無
《内見予約受付中》【礼金なし!!】好立地!♪南東向き物件
オンライン内見・契約実施!気になる物件はまとめてご案内可能です! お部屋探しはナビホーム赤坂店にお任せください♪ |
||
| 所属団体 |
(公社)東京都宅地建物取引業協会会員 (公社)首都圏不動産公正取引協議会加盟 |
||
| 取扱会社(3) | SEG(株)PeerHome新橋店 (情報提供媒体:SUUMO) | ||
|---|---|---|---|
| 住所 | 東京都港区西新橋1-5-10 TJ内幸町ビル10階 | ||
| 電話番号 | 03-6257-8691 | 免許番号 | 東京都知事(2)第103362号 |
| 取引態様 | 仲介 | 物件管理番号 |
100450816743 ※お問い合わせの際には、担当者へ物件管理番号をお伝えください。 |
| 物件に関する情報 |
物件の所在地 : 東京都渋谷区本町3 /
交通の利便 : 都営大江戸線/西新宿五丁目駅 歩4分、東京メトロ丸ノ内線/中野新橋駅 歩14分、京王新線/初台駅 歩14分 /
面積 : 54.66m² /
築年月 : 2019年03月 /
賃料 : 28.9万円 /
管理費又は共益費等 : 1.5万円 /
礼金等 : 無料 /
敷金 : 1ヶ月、保証金等 : -、 償却、敷引 : - /
住宅総合保険等の損害保険料 : 2.8万円2年 /
その他 : 通勤管理/※違約金:契約開始日より1年未満の解約は家賃+共益費の1ヶ月分 ※再契約:双方の合意により再契約相談可。新賃料1ヶ月分を再契約料として支払うものとする。 ※同タイプ・別階の内観写真を掲載している場合があります。図面と現況が異なる場合は現況を優先いたします。
合計3.85万円(内訳:鍵交換:24200円 Goodプレミアムα:12100円 Goodプレミアムα登録料:2200円)
清掃費:74800円 エアコンクリーニング代:36300円
二人入居可
定期借家 2年
保証会社利用必 ◆エポス◆ 賃料総額の60%、月次保証料:賃料総額の1% 、更新料なし
/ 駐車場 : 近隣駐車場
近隣50m45000円
ネット無料☆追い炊き・浴室乾燥など設備充実☆
☆初期費用クレカ決済もご相談ください!!◎ピアホームは港区・渋谷区特化型☆ オンライン内見・契約実施中! |
||
| 取扱会社(4) | (株)Airy Home (情報提供媒体:SUUMO) | ||
|---|---|---|---|
| 住所 | 東京都新宿区西新宿6-4-1 新宿アイランドアトリウム2階2302号室 | ||
| 電話番号 | 03-5989-1888 | 免許番号 | 東京都知事(2)第102991号 |
| 取引態様 | 仲介 | 物件管理番号 |
100470115753 ※お問い合わせの際には、担当者へ物件管理番号をお伝えください。 |
| 物件に関する情報 |
物件の所在地 : 東京都渋谷区本町3 /
交通の利便 : 都営大江戸線/西新宿五丁目駅 歩7分、都営大江戸線/中野坂上駅 歩15分 /
面積 : 54.66m² /
築年月 : 2019年02月 /
賃料 : 28.9万円 /
管理費又は共益費等 : 1.5万円 /
礼金等 : 無料 /
敷金 : 1ヶ月、保証金等 : -、 償却、敷引 : - /
住宅総合保険等の損害保険料 : - /
その他 : 弊社ではエリア・物件問わず、他社様が掲載しているお部屋も全てご紹介出来ます。何社も回らずに1回で済むので効率よくお部屋探しが出来ます!他に気になるお部屋がございましたら、お気軽にお申し付けください。最新の空室確認を行い、まとめてご案内致します。
合計3.85万円(内訳:Goodプレミアムα(24Hサポートのみ)1.21万円 Goodプレミアムα登録料0.22万円 鍵交換代2.42万円)
更新料 289000円
定期借家 2年
保証会社利用可 要相談
/ 駐車場 : 無
新着物件!まで
☆おでのご案内がスムーズです☆何でもお気軽にお問い合わせください☆ AiryHomeはお客様の理想のお部屋にご案内できるよう誠心誠意対応させて頂きます! |
||
| 所属団体 |
(公社)全日本不動産協会東京都本部会員 (公社)首都圏不動産公正取引協議会加盟 |
||
| 取扱会社(5) | (株)T-BRIDGE (情報提供媒体:SUUMO) | ||
|---|---|---|---|
| 住所 | 東京都渋谷区渋谷2-19-15 MIYAMASUZAKABUILDING2階 | ||
| 電話番号 | 03-6805-0002 | 免許番号 | 東京都知事(2)第104461号 |
| 取引態様 | 仲介 | 物件管理番号 |
100469101830 ※お問い合わせの際には、担当者へ物件管理番号をお伝えください。 |
| 物件に関する情報 |
物件の所在地 : 東京都渋谷区本町3 /
交通の利便 : 都営大江戸線/西新宿五丁目駅 歩4分、東京メトロ丸ノ内線/中野新橋駅 歩10分、京王新線/初台駅 歩15分 /
面積 : 54.66m² /
築年月 : 2019年03月 /
賃料 : 27.9万円 /
管理費又は共益費等 : 1.5万円 /
礼金等 : 無料 /
敷金 : 1ヶ月、保証金等 : -、 償却、敷引 : - /
住宅総合保険等の損害保険料 : 2.8万円2年 /
その他 : 通勤管理
合計4.62万円(内訳:鍵交換代 24200円 Goodプレミアムα 12100円 Goodプレミアムα登録料 2200円 契約事務手数料 7700円)
退去時清掃費 74800円 エアコンクリーニング代 36300円
二人入居可/子供可
定期借家 2年
保証会社利用必 初回保証委託料:月額賃料等の60%、月額保証料:賃料等の1%
/ 駐車場 : 無
不動産サービスの本質を追求し見極め、価値あるアテンドをお約束
都心部の物件情報は随時流動しています。ハイクラス物件を中心とした専門のプロフェッショナルエージェントが、迅速かつ的確なご提案から諸条件交渉や細部に至るニーズまで、お客様の「住」の価値の最大化に努めます |
||
| 所属団体 |
(公社)全日本不動産協会東京都本部会員 (公社)首都圏不動産公正取引協議会加盟 |
||
| 取扱会社(6) | TR(株)MINATO HOME (情報提供媒体:SUUMO) | ||
|---|---|---|---|
| 住所 | 東京都港区赤坂2-19-5 内田ビル301 | ||
| 電話番号 | 03-5544-9081 | 免許番号 | 東京都知事(1)第109457号 |
| 取引態様 | 仲介 | 物件管理番号 |
100475950070 ※お問い合わせの際には、担当者へ物件管理番号をお伝えください。 |
| 物件に関する情報 |
物件の所在地 : 東京都渋谷区本町3 /
交通の利便 : 都営大江戸線/西新宿五丁目駅 歩7分、都営大江戸線/中野坂上駅 歩15分 /
面積 : 54.66m² /
築年月 : 2019年02月 /
賃料 : 28.9万円 /
管理費又は共益費等 : 1.5万円 /
礼金等 : 無料 /
敷金 : 1ヶ月、保証金等 : -、 償却、敷引 : - /
住宅総合保険等の損害保険料 : 要 /
その他 : 鍵交換費用24 200円 税込、Goodプレミアムα(24Hサポートのみ)11 000円 税抜(入居時)、住宅総合保険(フレックス)28 000円 非課税(入居時)、Goodプ レミアムα登録料2 000円/税抜(入居時)
合計3.63万円(内訳:Goodプレミアムα(24Hサポートのみ1.21万円 鍵交換代2.42万円)
更新料 289000円
定期借家 2年
/ 駐車場 : 無
《内見予約受付中》【礼金なし!!】好立地!♪南東向き物件
オンライン内見・契約実施!気になる物件はまとめてご案内可能です! お部屋探しはナビホーム赤坂店にお任せください♪ |
||
| 所属団体 |
(公社)東京都宅地建物取引業協会会員 (公社)首都圏不動産公正取引協議会加盟 |
||
| 取扱会社(7) | (株)リライフ中野坂上店 (情報提供媒体:SUUMO) | ||
|---|---|---|---|
| 住所 | 東京都中野区本町2-49-12 誠文堂ビル1階 | ||
| 電話番号 | 03-6372-1936 | 免許番号 | 国土交通大臣(1)第10792号 |
| 取引態様 | 仲介 | 物件管理番号 |
100476240809 ※お問い合わせの際には、担当者へ物件管理番号をお伝えください。 |
| 物件に関する情報 |
物件の所在地 : 東京都渋谷区本町3 /
交通の利便 : 都営大江戸線/西新宿五丁目駅 歩4分、東京メトロ丸ノ内線/中野坂上駅 歩13分、東京メトロ丸ノ内線/中野新橋駅 歩13分 /
面積 : 54.66m² /
築年月 : 2019年03月 /
賃料 : 27.9万円 /
管理費又は共益費等 : 1.5万円 /
礼金等 : 無料 /
敷金 : 1ヶ月、保証金等 : -、 償却、敷引 : - /
住宅総合保険等の損害保険料 : 2.8万円2年 /
その他 : 通勤管理/当物件は「住まいのリライフ」で取り扱っております。リライフは首都圏25店舗のネットワークで豊富な物件情報をお客様へご提供します。当物件に類似した未公開物件なども合わせてご提案可能です。お気軽にお問合せください。違約金有:1年未満の解約は家賃+共益費の1ヶ月分
合計3.85万円(内訳:鍵交換代金2.42万円 Goodプレミアムα(24Hサポートのみ)(初回のみ)1.21万円 Goodプレミアムα登録料(初回のみ)0.22万円)
二人入居可/ルームシェア不可
定期借家 2年
保証会社利用必 初回:月額総家賃の50%~
/ 駐車場 : 無
当物件はオンラインまたはお近くの店舗でご相談お申込を承ります
室内見学承ります・お客様のご都合に合わせてオンラインまたはお近くの店舗でご提案可・初期費用分割払い可・クレジットカード利用可・引越業者割引・初期費用のお見積や入居日のご相談もお気軽にお問合せください |
||
| 所属団体 |
(公社)東京都宅地建物取引業協会会員 (公社)首都圏不動産公正取引協議会加盟 |
||
| 取扱会社(8) | SEG(株)PeerHome広尾駅前店アネックス (情報提供媒体:SUUMO) | ||
|---|---|---|---|
| 住所 | 東京都港区南麻布5-15-11 広尾セオハウス2階 | ||
| 電話番号 | 03-6721-6630 | 免許番号 | 東京都知事(2)第103362号 |
| 取引態様 | 仲介 | 物件管理番号 |
100450816626 ※お問い合わせの際には、担当者へ物件管理番号をお伝えください。 |
| 物件に関する情報 |
物件の所在地 : 東京都渋谷区本町3 /
交通の利便 : 都営大江戸線/西新宿五丁目駅 歩4分、東京メトロ丸ノ内線/中野新橋駅 歩14分、京王新線/初台駅 歩14分 /
面積 : 54.66m² /
築年月 : 2019年03月 /
賃料 : 28.9万円 /
管理費又は共益費等 : 1.5万円 /
礼金等 : 無料 /
敷金 : 1ヶ月、保証金等 : -、 償却、敷引 : - /
住宅総合保険等の損害保険料 : 2.8万円2年 /
その他 : 通勤管理/※違約金:契約開始日より1年未満の解約は家賃+共益費の1ヶ月分 ※再契約:双方の合意により再契約相談可。新賃料1ヶ月分を再契約料として支払うものとする。 ※同タイプ・別階の内観写真を掲載している場合があります。図面と現況が異なる場合は現況を優先いたします。
合計3.85万円(内訳:鍵交換:24200円 Goodプレミアムα:12100円 Goodプレミアムα登録料:2200円)
清掃費:74800円 エアコンクリーニング代:36300円
二人入居可
定期借家 2年
保証会社利用必 ◆エポス◆ 賃料総額の60%、月次保証料:賃料総額の1% 、更新料なし
/ 駐車場 : 近隣駐車場
近隣50m45000円
ネット無料☆追い炊き・浴室乾燥など設備充実☆
☆初期費用クレカ決済もご相談ください!!◎ピアホームは港区・渋谷区特化型☆ オンライン内見・契約実施中! |
||
| 所属団体 |
(公社)東京都宅地建物取引業協会会員 (公社)首都圏不動産公正取引協議会加盟 |
||
| 取扱会社(9) | ピアホーム広尾駅前店(株)PH.C (情報提供媒体:SUUMO) | ||
|---|---|---|---|
| 住所 | 東京都港区南麻布5-15-11広尾セオハウス2階 | ||
| 電話番号 | 03-6456-4569 | 免許番号 | 東京都知事(1)第106525号 |
| 取引態様 | 仲介 | 物件管理番号 |
100450816621 ※お問い合わせの際には、担当者へ物件管理番号をお伝えください。 |
| 物件に関する情報 |
物件の所在地 : 東京都渋谷区本町3 /
交通の利便 : 都営大江戸線/西新宿五丁目駅 歩4分、東京メトロ丸ノ内線/中野新橋駅 歩14分、京王新線/初台駅 歩14分 /
面積 : 54.66m² /
築年月 : 2019年03月 /
賃料 : 28.9万円 /
管理費又は共益費等 : 1.5万円 /
礼金等 : 無料 /
敷金 : 1ヶ月、保証金等 : -、 償却、敷引 : - /
住宅総合保険等の損害保険料 : 2.8万円2年 /
その他 : 通勤管理/※違約金:契約開始日より1年未満の解約は家賃+共益費の1ヶ月分 ※再契約:双方の合意により再契約相談可。新賃料1ヶ月分を再契約料として支払うものとする。 ※同タイプ・別階の内観写真を掲載している場合があります。図面と現況が異なる場合は現況を優先いたします。
合計3.85万円(内訳:鍵交換:24200円 Goodプレミアムα:12100円 Goodプレミアムα登録料:2200円)
清掃費:74800円 エアコンクリーニング代:36300円
二人入居可
定期借家 2年
保証会社利用必 ◆エポス◆ 賃料総額の60%、月次保証料:賃料総額の1% 、更新料なし
/ 駐車場 : 近隣駐車場
近隣50m45000円
ネット無料☆追い炊き・浴室乾燥など設備充実☆
☆初期費用クレカ決済もご相談ください!!◎ピアホームは港区・渋谷区特化型☆ オンライン内見・契約実施中! |
||
| 所属団体 |
(公社)東京都宅地建物取引業協会会員 (公社)首都圏不動産公正取引協議会加盟 |
||

