



東京都江東区豊洲1
東京メトロ有楽町線/豊洲駅 歩8分
東京メトロ有楽町線/月島駅 歩16分
JR京葉線/越中島駅 歩16分
東京メトロ有楽町線/月島駅 歩16分
JR京葉線/越中島駅 歩16分
地下1地上20階建 / 2008年03月 / 賃貸マンション
★ペット相談可★WIC★宅配ボックス★駐車場有★タワー型★
★お問い合わせ当日内見可能★オンライン内見可能★入居審査のご相談受付中★江東区のお部屋探しはとらいち不動産にお任せ下さい!★★
ただいま1人が検討中!
| 賃料 / 管理費 | 敷金 / 礼金 | 間取り / 面積 | 階数 部屋番号 | 方位 | 詳細を見る | |
|---|---|---|---|---|---|---|
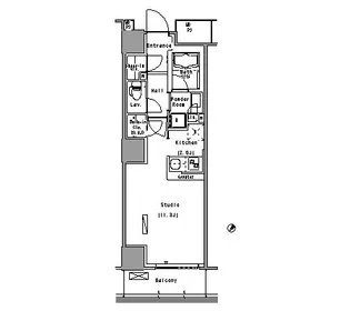
| 17.0万円 / 5,000円 | 17.0万円 / 17.0万円 | 1K / 35.61m² | 5階 ー | 北西 | 詳細を見る |




























































