



東京都中央区湊3
東京メトロ有楽町線/新富町駅 歩6分
東京メトロ日比谷線/築地駅 歩9分
JR京葉線/八丁堀駅 歩8分
東京メトロ日比谷線/築地駅 歩9分
JR京葉線/八丁堀駅 歩8分
地下1地上27階建 / 2007年02月 / 賃貸マンション
銀座三越徒歩圏の高級賃貸タワーマンション!
キッズルーム,ゲストルーム,ビューラウンジ,コワーキングスペース等の共用施設が充実しており、フロントサービスもある分譲仕様のタワーマンション。水と緑に溢れた住環境です。
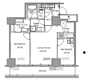
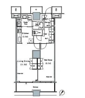
| 賃料 / 管理費 | 敷金 / 礼金 | 間取り / 面積 | 階数 部屋番号 | 方位 | 詳細を見る | |
|---|---|---|---|---|---|---|
| 41.5万円 / 2.0万円 | 83.0万円 / 無料 | 2LDK / 60.92m² | 13階 ー | 南 | 詳細を見る |




























































