三住ビルの賃貸情報
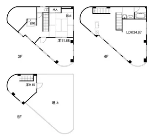
建物情報
| 住所 | 兵庫県姫路市辻井3丁目周辺物件を探す |
|---|---|
| 階建・築年月 | 地上5階建・1984年10月 |
| 種別・構造 | マンション・RC |
| 最寄り駅/列車種別 | ー |
| 地図 |
空室情報
- 新着順
過去掲載物件情報
周辺環境
周辺地図
周辺施設
たでら交番前薬局 (154m)
スギ薬局 姫路辻井店 (271m)
株式会社マルアイ 辻井店 (290m)
業務スーパー 田寺店 (647m)
セブン‐イレブン 姫路辻井8丁目店 (456m)
ローソン 姫路西今宿8丁目店 (757m)
安室保育園 (170m)
姫路市立 高岡保育所 (1,128m)
姫路市立安室東小学校 (542m)
姫路市立高丘中学校 (400m)
※周辺情報は不動産会社から提供された情報ではなく、弊サービスで独自に収集した情報です。
※2024年10月時点のデータを元にしているため、最新および正確でない可能性があります。
















































