
ローヤルシティ北本
空室情報
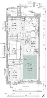
| 間取り画像 | 階 部屋番号 | 賃料 管理費 | 敷金 礼金 | 間取 面積 | 方位 | |
|---|---|---|---|---|---|---|
新着 ![]() | 5階 ー | 11.0万円 1.0万円 | 11.0万円 12.1万円 | 3LDK 75.48m² | 南 |
過去掲載物件情報
過去掲載物件はありません
建物情報
| 住所 | 埼玉県北本市西高尾2丁目周辺物件を探す | 最寄り駅/列車種別 | 快速特急532m |
|---|---|---|---|
| 階建 | 地上5階建 | 築年月 | 2007年10月 |
| 種別 | マンション | 構造 | RC |
周辺環境
周辺地図
周辺施設
スギドラッグ 北本西高尾店 (33m)
ドラッグセイムス 北本中央店 (188m)
株式会社 ヤオコー北本中央店 (188m)
株式会社いなげや 北本駅前店 (379m)
ローソン 北本駅西口店 (483m)
ローソン 北本中央二丁目店 (507m)
ふじ幼稚園 (728m)
鈴や保育室 (531m)
鴻巣市立松原小学校 (897m)
北本市立北本中学校 (600m)
※周辺情報は不動産会社から提供された情報ではなく、弊サービスで独自に収集した情報です。
※2024年10月時点のデータを元にしているため、最新および正確でない可能性があります。





