
コンフォート長田
空室情報
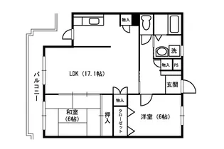
| 間取り画像 | 階 部屋番号 | 賃料 管理費 | 敷金 礼金 | 間取 面積 | 方位 | |
|---|---|---|---|---|---|---|
新着 ![]() | 1階 ー | 6.0万円 3,000円 | 無料 無料 | 2LDK 68.41m² | 南東 |
過去掲載物件情報
| 階 | 賃料 管理費 | 敷金 礼金 | 間取 面積 |
|---|---|---|---|
| 4階 | 6.0万円 3,000円 | 無料 無料 | 2LDK 68.41m² |
| 1階 | 6.0万円 3,000円 | 無料 無料 | 2LDK 68.41m² |
| 3階 | 7.5万円 3,000円 | 無料 無料 | 3LDK 77.4m² |
建物情報
| 住所 | 山梨県甲府市中小河原町周辺物件を探す | 最寄り駅/列車種別 | 755m |
|---|---|---|---|
| 階建 | 地上4階建 | 築年月 | 1997年04月 |
| 種別 | マンション | 構造 | RC |
周辺環境
周辺地図
周辺施設
米永薬局 (507m)
ツルハドラッグ 甲府中小河原店 (571m)
オギノ 上今井店 (430m)
株式会社いちやまマート 鮮魚配送センター (1,161m)
ファミリーマート 甲府中小河原店 (196m)
セブン‐イレブン 甲府山城店 (528m)
ベビールームうちだ (1,126m)
かほる保育園 (430m)
甲府市立山城小学校 (641m)
甲府市立 城南中学校 (1,310m)
※周辺情報は不動産会社から提供された情報ではなく、弊サービスで独自に収集した情報です。
※2024年10月時点のデータを元にしているため、最新および正確でない可能性があります。






