
ルックハイツ取手第2
空室情報
| 間取り画像 | 階 部屋番号 | 賃料 管理費 | 敷金 礼金 | 間取 面積 | 方位 | |
|---|---|---|---|---|---|---|
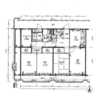
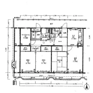
![]() | 5階 ー | 7.5万円 ー | 15.0万円 7.5万円 | 3SLDK 84.91m² | 南 | |
![]() | 5階 ー | 7.5万円 ー | 7.5万円 無料 | 3SLDK 84.91m² | 南 |
過去掲載物件情報
過去掲載物件はありません
建物情報
| 住所 | 茨城県取手市取手2丁目周辺物件を探す | 最寄り駅/列車種別 | 快速405m |
|---|---|---|---|
| 階建 | 地上5階建 | 築年月 | 1982年02月 |
| 種別 | マンション | 構造 | RC |
周辺環境
周辺地図
周辺施設
日本調剤 取手中央薬局 (227m)
マツモトキヨシ ボックスヒル取手店 (438m)
西友取手駅前店 (420m)
成城石井 ボックスヒル取手店 (438m)
ローソン 取手駅東口バスターミナル店 (225m)
ローソン 取手駅東店 (273m)
チューリップ幼稚園 (223m)
ふたば保育園 (593m)
取手市立取手小学校 (654m)
※周辺情報は不動産会社から提供された情報ではなく、弊サービスで独自に収集した情報です。
※2024年10月時点のデータを元にしているため、最新および正確でない可能性があります。






