
GRAFFITI MATSUI
空室情報
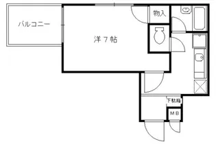
| 間取り画像 | 階 部屋番号 | 賃料 管理費 | 敷金 礼金 | 間取 面積 | 方位 | |
|---|---|---|---|---|---|---|
新着 ![]() | 1階 103号室 | 4.0万円 4,000円 | 無料 4.0万円 | 1K 27.41m² | 南東 | |
新着 ![]() | 2階 203号室 | 4.0万円 4,000円 | 無料 4.0万円 | 1K 25m² | 南東 | |
新着 ![]() | 1階 103号室 | 4.0万円 4,000円 | 無料 4.0万円 | 1K 23.56m² | 南東 |
過去掲載物件情報
| 階 | 賃料 管理費 | 敷金 礼金 | 間取 面積 |
|---|---|---|---|
| 2階 | 4.0万円 4,000円 | 無料 4.0万円 | 1K 23.56m² |
| 1階 | 4.0万円 4,000円 | 無料 4.0万円 | 1K 25m² |
| 1階 | 4.3万円 4,000円 | 無料 4.3万円 | 1K 27.41m² |
建物情報
| 住所 | 京都府京都市西京区大枝沓掛町周辺物件を探す | 最寄り駅/列車種別 | ー |
|---|---|---|---|
| 階建 | 地上3階建 | 築年月 | 1986年03月 |
| 種別 | マンション | 構造 | RC |
周辺環境
周辺地図
周辺施設
調剤薬局たちばな (111m)
株式会社ひまわり薬局 洛西店 (117m)
デイリーカナートイズミヤ桂坂店 (821m)
業務スーパー 洛西店 (857m)
ローソン 国道沓掛店 (56m)
ローソン 大枝沓掛店 (177m)
洛西せいか幼稚園 (868m)
新林保育園 (937m)
京都市立大枝小学校 (812m)
京都市立大枝中学校 (1,360m)
京都市立芸術大学 京都市西京区のキャンパス (193m)
総合研究大学院大学 京都市西京区のキャンパス (1,351m)
※周辺情報は不動産会社から提供された情報ではなく、弊サービスで独自に収集した情報です。
※2024年10月時点のデータを元にしているため、最新および正確でない可能性があります。








