
ブライズ蒲田WEST
空室情報
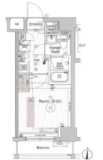
| 間取り画像 | 階 部屋番号 | 賃料 管理費 | 敷金 礼金 | 間取 面積 | 方位 | |
|---|---|---|---|---|---|---|
新着 ![]() | 4階 ー | 8.2万円 8,000円 | 無料 8.2万円 | 1K 20.31m² | 南 | |
新着 ![]() | 4階 ー | 8.2万円 8,000円 | 無料 8.2万円 | 1K 20.31m² | 南 |
過去掲載物件情報
| 階 | 賃料 管理費 | 敷金 礼金 | 間取 面積 |
|---|---|---|---|
| 1階 | 7.1万円 1.5万円 | 無料 10.65万円 | 1K 20.4m² |
| 4階 | 7.3万円 1.5万円 | 無料 7.3万円 | 1K 20.4m² |
| 1階 | 7.1万円 1.5万円 | 無料 14.2万円 | 1K 20.67m² |
建物情報
| 住所 | 東京都大田区東矢口1丁目周辺物件を探す | 最寄り駅/列車種別 | |
|---|---|---|---|
| 階建 | 地上7階建 | 築年月 | 2014年02月 |
| 種別 | マンション | 構造 | その他 |
周辺環境
周辺地図
周辺施設
ミツワ薬局 (172m)
薬樹薬局 はすぬま (205m)
まいばすけっと 東矢口1丁目 (136m)
株式会社ライフコーポレーション 西蒲田店 (646m)
ファミリーマート 大田東矢口三丁目店 (195m)
セブンイレブン 蓮沼店 (237m)
矢口幼稚園 (60m)
はなぞの保育室 (530m)
大田区立矢口東小学校 (227m)
大田区立安方中学校 (335m)
東京工科大学 大田区のキャンパス (966m)
※周辺情報は不動産会社から提供された情報ではなく、弊サービスで独自に収集した情報です。
※2024年10月時点のデータを元にしているため、最新および正確でない可能性があります。







