
ビレッジハウス津田4号棟
空室情報
| 間取り画像 | 階 部屋番号 | 賃料 管理費 | 敷金 礼金 | 間取 面積 | 方位 | |
|---|---|---|---|---|---|---|
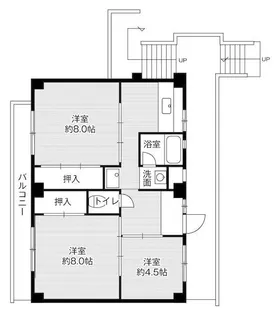
![]() | 2階 ー | 5.14万円 ー | 無料 無料 | 3DK 57.96m² | 南 | |
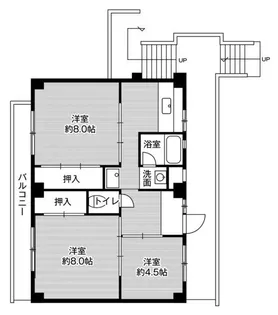
![]() | 1階 ー | 5.14万円 ー | 無料 無料 | 3DK 57.96m² | 南 |
過去掲載物件情報
| 階 | 賃料 管理費 | 敷金 礼金 | 間取 面積 |
|---|---|---|---|
| 1階 | 5.12万円 ー | 無料 無料 | 3DK 57.96m² |
| 4階 | 5.15万円 ー | 無料 無料 | 3DK 57.96m² |
| 3階 | 4.5万円 ー | 無料 無料 | 3DK 57.96m² |
建物情報
| 住所 | 愛知県豊橋市横須賀町林周辺物件を探す | 最寄り駅/列車種別 | |
|---|---|---|---|
| 階建 | 地上4階建 | 築年月 | 1966年06月 |
| 種別 | マンション | 構造 | RC |
周辺環境
周辺地図
周辺施設
V・drug 豊橋菰口店 (1,209m)
ココカラファイン 吉川店 (1,422m)
フィール 豊橋こもぐち店 (1,224m)
サンヨネ下地センター (1,309m)
セブン‐イレブン 豊橋横須賀町店 (675m)
ファミリーマート 豊橋瓜郷前川店 (700m)
豊橋市立 津田保育園 (67m)
豊橋市立津田小学校 (125m)
※周辺情報は不動産会社から提供された情報ではなく、弊サービスで独自に収集した情報です。
※2024年10月時点のデータを元にしているため、最新および正確でない可能性があります。







