
フォレストプレイス香椎照葉ザ テラス02
空室情報
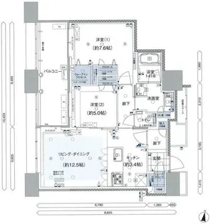
| 間取り画像 | 階 部屋番号 | 賃料 管理費 | 敷金 礼金 | 間取 面積 | 方位 | |
|---|---|---|---|---|---|---|
新着 ![]() | 11階 ー | 16.4万円 ー | 無料 32.8万円 | 3LDK 82.3m² | ー |
過去掲載物件情報
| 階 | 賃料 管理費 | 敷金 礼金 | 間取 面積 |
|---|---|---|---|
| 9階 | 17.0万円 ー | 8.5万円 34.0万円 | 3LDK 82.3m² |
| 9階 | 17.0万円 ー | 8.5万円 34.0万円 | 3LDK 82.3m² |
| 2階 | 21.0万円 ー | 21.0万円 42.0万円 | 4LDK 100.98m² |
建物情報
| 住所 | 福岡県福岡市東区香椎照葉6周辺物件を探す | 最寄り駅/列車種別 | ー |
|---|---|---|---|
| 階建 | 地上14階建 | 築年月 | 2020年10月 |
| 種別 | マンション | 構造 | RC |
周辺環境
周辺地図
周辺施設
スーパーセンタートライアル アイランドシティ店 (222m)
タケシタ調剤薬局 照葉店 (269m)
株式会社フードウェイ アイランドアイ照葉店 (90m)
株式会社ミートイン・ハイマート アイランドアイ照葉店 (90m)
セブン‐イレブン 福岡市総合体育館店 (1m)
ファミリーマート 福岡香椎照葉四丁目店 (593m)
てりは 子どもの家 (835m)
福岡市立 照葉はばたき小学校 (519m)
サイバー大学 福岡市東区のキャンパス (797m)
※周辺情報は不動産会社から提供された情報ではなく、弊サービスで独自に収集した情報です。
※2024年10月時点のデータを元にしているため、最新および正確でない可能性があります。






