
AZEST立石I
空室情報
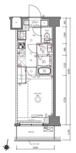
| 間取り画像 | 階 部屋番号 | 賃料 管理費 | 敷金 礼金 | 間取 面積 | 方位 | |
|---|---|---|---|---|---|---|
新着 ![]() | 5階 ー | 8.6万円 1.0万円 | 無料 8.6万円 | 1K 22.94m² | 南東 | |
![]() | 1階 ー | 8.5万円 1.0万円 | 8.5万円 8.5万円 | 1K 22.94m² | 南 |
過去掲載物件情報
| 階 | 賃料 管理費 | 敷金 礼金 | 間取 面積 |
|---|---|---|---|
| 2階 | 7.8万円 2.0万円 | 無料 7.8万円 | 1K 22.94m² |
| 1階 | 7.8万円 2.0万円 | 無料 7.8万円 | 1K 22.94m² |
| 4階 | 8.9万円 8,000円 | 無料 8.9万円 | 1K 22.8m² |
建物情報
| 住所 | 東京都葛飾区立石2丁目周辺物件を探す | 最寄り駅/列車種別 | |
|---|---|---|---|
| 階建 | 地上7階建 | 築年月 | 2023年07月 |
| 種別 | マンション | 構造 | RC |
周辺環境
周辺地図
周辺施設
三愛薬局 (136m)
オレンジ薬局立石店 (243m)
株式会社石塚園 (341m)
株式会社イトーヨーカ堂 店舗四つ木店 (392m)
セブンイレブン 葛飾立石3丁目店 (96m)
ファミリーマート 立石三丁目店 (130m)
葛飾こどもの園幼稚園 (309m)
立石 いろは保育園 (134m)
葛飾区立本田小学校 (243m)
葛飾区立 大道中学校 (668m)
※周辺情報は不動産会社から提供された情報ではなく、弊サービスで独自に収集した情報です。
※2024年10月時点のデータを元にしているため、最新および正確でない可能性があります。






