
永瀬アパート
空室情報
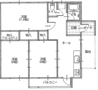
| 間取り画像 | 階 部屋番号 | 賃料 管理費 | 敷金 礼金 | 間取 面積 | 方位 | |
|---|---|---|---|---|---|---|
![]() | 2階 ー | 4.8万円 ー | 9.6万円 無料 | 3K 54.39m² | 南 |
過去掲載物件情報
過去掲載物件はありません
建物情報
| 住所 | 山形県東根市神町中央1丁目周辺物件を探す | 最寄り駅/列車種別 | 259m |
|---|---|---|---|
| 階建 | 地上2階建 | 築年月 | 1991年99月 |
| 種別 | アパート | 構造 | 木造 |
周辺環境
周辺地図
周辺施設
さくら調剤薬局神町店 (85m)
株式会社土屋薬局 (251m)
株式会社ヤマザワ神町店 (488m)
株式会社ヨークベニマル 神町店 (1,024m)
ファミリーマート 東根神町店 (421m)
セブン‐イレブン 東根神町中央2丁目店 (522m)
ひまわり幼児園 (880m)
さくらっこ保育園 (414m)
東根市立 神町小学校 (919m)
東根市立 神町中学校 (776m)
※周辺情報は不動産会社から提供された情報ではなく、弊サービスで独自に収集した情報です。
※2024年10月時点のデータを元にしているため、最新および正確でない可能性があります。






