
ポプラーレ狭山Ⅱ
空室情報
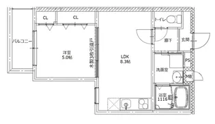
| 間取り画像 | 階 部屋番号 | 賃料 管理費 | 敷金 礼金 | 間取 面積 | 方位 | |
|---|---|---|---|---|---|---|
新着 ![]() | 2階 ー | 5.85万円 5,400円 | 無料 6.0万円 | 1LDK 33.2m² | 北 | |
新着 ![]() | 2階 ー | 5.85万円 5,400円 | 無料 6.0万円 | 1LDK 33.2m² | 北 |
過去掲載物件情報
| 階 | 賃料 管理費 | 敷金 礼金 | 間取 面積 |
|---|---|---|---|
| 2階 | 5.85万円 5,400円 | 無料 6.0万円 | 1LDK 33m² |
| 2階 | 5.85万円 5,400円 | 無料 6.0万円 | 1DK 33.2m² |
| 2階 | 5.85万円 5,400円 | 無料 10.0万円 | 1LDK 33.2m² |
建物情報
| 住所 | 大阪府大阪狭山市池尻中1丁目周辺物件を探す | 最寄り駅/列車種別 | |
|---|---|---|---|
| 階建 | 地上3階建 | 築年月 | 2023年10月 |
| 種別 | アパート | 構造 | 木造 |
周辺環境
周辺地図
周辺施設
ウェーブ薬局 狭山店 (200m)
中島薬局 (369m)
サンディ 大阪狭山店 (885m)
業務スーパー 狭山店 (1,266m)
ローソン 大阪狭山池尻中二丁目店 (285m)
ファミリーマート狭山市役所前店 (1,173m)
大阪狭山市立 東幼稚園 (629m)
池尻保育園 (163m)
大阪狭山市立北小学校 (542m)
初芝立命館中学校 (632m)
藍野大学短期大学部 富田林市のキャンパス (1,387m)
※周辺情報は不動産会社から提供された情報ではなく、弊サービスで独自に収集した情報です。
※2024年10月時点のデータを元にしているため、最新および正確でない可能性があります。







