
リビオ世田谷松原
空室情報
| 間取り画像 | 階 部屋番号 | 賃料 管理費 | 敷金 礼金 | 間取 面積 | 方位 | |
|---|---|---|---|---|---|---|
新着 ![]() | 4階 ー | 26.8万円 ー | 26.8万円 26.8万円 | 2LDK 61.38m² | 東 | |
新着 | 4階 ー | 26.8万円 ー | 26.8万円 26.8万円 | 2LDK 61.38m² | 東 | |
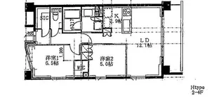
新着 | 1階 103号室 | 25.0万円 1.7万円 | 50.0万円 25.0万円 | 2SLDK 64.38m² | 南西 | |
新着 | 1階 ー | 25.0万円 1.7万円 | 50.0万円 25.0万円 | 2SLDK 64.38m² | 南西 | |
新着 ![]() | 1階 ー | 25.0万円 1.7万円 | 50.0万円 25.0万円 | 3LDK 64.38m² | 南西 | |
![]() | 4階 ー | 26.8万円 ー | 26.8万円 26.8万円 | 2LDK 61.38m² | 東 | |
![]() | 4階 ー | 26.8万円 ー | 26.8万円 26.8万円 | 2LDK 61.38m² | 東 |
過去掲載物件情報
| 階 | 賃料 管理費 | 敷金 礼金 | 間取 面積 |
|---|---|---|---|
| 1階 | 25.0万円 1.7万円 | 50.0万円 25.0万円 | 2SLDK 64.38m² |
| 2階 | 13.8万円 ー | 13.8万円 13.8万円 | 1LDK 36.5m² |
| 2階 | 23.0万円 1.0万円 | 23.0万円 46.0万円 | 2LDK 58.83m² |
建物情報
| 住所 | 東京都世田谷区松原3丁目周辺物件を探す | 最寄り駅/列車種別 | |
|---|---|---|---|
| 階建 | 地上5階建 | 築年月 | 2020年03月 |
| 種別 | マンション | 構造 | RC |
周辺環境
周辺地図
周辺施設
クオール薬局 松原店 (139m)
ココカラファイン 下高井戸北口店 (230m)
西友 下高井戸店 (223m)
まいばすけっと 明大前店 (515m)
セブン‐イレブン 下高井戸駅北口店 (177m)
セブン‐イレブン 世田谷赤堤4丁目店 (229m)
日本女子体育大学 附属みどり幼稚園 (392m)
世田谷区立 赤堤保育園 (624m)
世田谷区立松沢小学校 (423m)
日本学園中学校 (448m)
明治大学 杉並区のキャンパス (740m)
※周辺情報は不動産会社から提供された情報ではなく、弊サービスで独自に収集した情報です。
※2024年10月時点のデータを元にしているため、最新および正確でない可能性があります。









