

5.1万円
管理費3,000円
敷5.1万円礼無料
札幌市東西線/西18丁目 徒歩8分
札幌市東西線/西11丁目 徒歩13分
札幌市南北線/すすきの 徒歩20分
札幌市東西線/西11丁目 徒歩13分
札幌市南北線/すすきの 徒歩20分
北海道札幌市中央区南四条西14丁目
1LDK / 35.51m²
3階 / 地上4階建
築13年 / 賃貸マンション
ただいま 1人 が検討中!
| 店舗名 | (株)ヴィル |
|---|---|
| 住所 | 北海道札幌市北区北三十七条西4丁目1番30号 |
| 定休日 | 水曜日・日曜日 |
| 営業時間 | 10:00〜18:00 |
| 交通 | - |
| 免許番号 | 北海道知事免許石狩(3)第7780号 |
| 代表者名 | - |
| 所属団体 | (公社)全日本不動産協会 (一社)北海道不動産公正取引協議会 |
| TEL | 011-788-9660 |

10:00〜18:00
水曜日・日曜日


5.1万円
管理費3,000円
1LDK / 35.51m²
3階 / 地上4階建
築13年 / 賃貸マンション


5.1万円
管理費3,000円
1LDK / 35.51m²
2階 / 地上4階建
築13年 / 賃貸マンション


6.1万円
管理費3,000円
2LDK / 46.97m²
1階 / 地上4階建
築13年 / 賃貸マンション


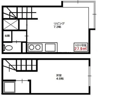
2.5万円
管理費ー
1DK / 27.9m²
1階 / 地上3階建
築33年 / 賃貸アパート


4.6万円
管理費3,500円
1LDK / 34.77m²
4階 / 地上4階建
築9年 / 賃貸マンション


4.9万円
管理費1,000円
1LDK / 40.05m²
2階 / 地上3階建
築14年 / 賃貸アパート
現在0件保存されています。
あと50件保存することができます。
お気に入りページから保存した物件が確認できます。

削除しました。