



北海道札幌市中央区南二条西12丁目
札幌市東西線/西11丁目 徒歩5分
札幌市軌道線/中央区役所前 徒歩5分
札幌市南北線/すすきの 徒歩17分
札幌市軌道線/中央区役所前 徒歩5分
札幌市南北線/すすきの 徒歩17分
地上15階建 / 2020年02月 / 賃貸マンション
「賃貸に、分譲の美学を。」 ★分譲ならではの上質感。 ★都心の利便性と快適設備があなたの生活を彩る。 ★エアコン完備、都市ガス暖房、床暖房付きの暖かく経済的な住まい。
ただいま3人が検討中!
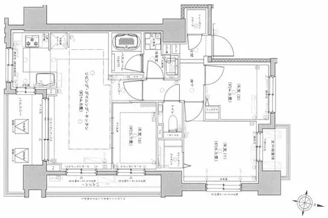
| 賃料 / 管理費 | 敷金 / 礼金 | 間取り / 面積 | 階数 部屋番号 | 方位 | 詳細を見る | |
|---|---|---|---|---|---|---|
| 16.5万円 / ー | 16.5万円 / 無料 | 3LDK / 65.05m² | 6階 ー | 南 | 詳細を見る |

