



愛知県岡崎市栄町1丁目
名鉄名古屋本線/東岡崎 徒歩21分
名鉄名古屋本線/男川 徒歩22分
名鉄名古屋本線/岡崎公園前 徒歩39分
名鉄名古屋本線/男川 徒歩22分
名鉄名古屋本線/岡崎公園前 徒歩39分
地上2階建 / 1989年07月 / 一戸建
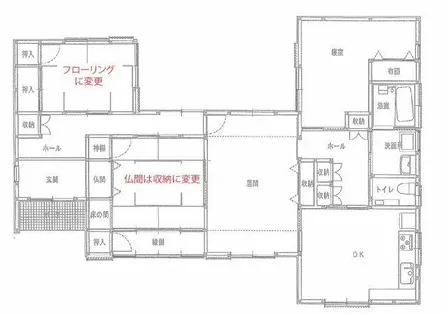
洗面所は浴室から独立しており、浴室の湿気で濡れることもありません。収納はクロゼット・押入などが備え付けられているので、衣類や日用品の収納に重宝します。こちらは一戸建て物件です。
ただいま7人が検討中! 人気上昇中!注目の物件です!
| 賃料 / 管理費 | 敷金 / 礼金 | 間取り / 面積 | 階数 部屋番号 | 方位 | 詳細を見る | |
|---|---|---|---|---|---|---|
| 7.0万円 / ー | 無料 / 無料 | 4DK / 59.51m² | ー 1号室 | 北西 | 詳細を見る |



























































