



兵庫県神戸市中央区琴ノ緒町4丁目
東海道本線/三ノ宮 徒歩5分
阪神電鉄本線/神戸三宮 徒歩6分
阪急電鉄神戸線/神戸三宮 徒歩7分
阪神電鉄本線/神戸三宮 徒歩6分
阪急電鉄神戸線/神戸三宮 徒歩7分
地上5階建 / 1996年06月 / 賃貸マンション
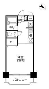
各線三宮駅徒歩圏の便利な立地です。オートロック・エレベーターあり。家具などが設置しやすいすっきりとした洋室です。収納2ヵ所。バスとトイレは、使い勝手の良いセパレートタイプ。脱衣所も確保されています。
ただいま1人が検討中!
| 賃料 / 管理費 | 敷金 / 礼金 | 間取り / 面積 | 階数 部屋番号 | 方位 | 詳細を見る | |
|---|---|---|---|---|---|---|
| 5.7万円 / 5,000円 | 無料 / 6.0万円 | 1K / 27.92m² | 3階 ー | 東 | 詳細を見る |






















































