



大阪府八尾市太子堂5丁目
関西本線/久宝寺 徒歩10分
関西本線/八尾 徒歩20分
大阪市谷町線/長原 徒歩27分
関西本線/八尾 徒歩20分
大阪市谷町線/長原 徒歩27分
地上2階建 / 1982年03月 / 賃貸アパート
株式会社ホームクエストでは 八尾市、柏原市、平野区の全てのお部屋がご紹介可能です! 初期費用のカード払いも可能♪ まずはTEL072-943-3084
ただいま2人が検討中!
| 賃料 / 管理費 | 敷金 / 礼金 | 間取り / 面積 | 階数 部屋番号 | 方位 | 詳細を見る | |
|---|---|---|---|---|---|---|
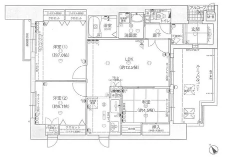
| 5.0万円 / ー | 無料 / 5.0万円 | 3DK / 46m² | 2階 ー | 南 | 詳細を見る |






















