



大阪府大阪市西区江戸堀3丁目
大阪市中央線/阿波座 徒歩7分
京阪電鉄中之島線/中之島 徒歩8分
大阪市四つ橋線/肥後橋 徒歩12分
JR東西線 新福島 徒歩13分
京阪電鉄中之島線/中之島 徒歩8分
大阪市四つ橋線/肥後橋 徒歩12分
JR東西線 新福島 徒歩13分
地上15階建 / 2016年09月 / 賃貸マンション
ただいま1人が検討中!
| 賃料 / 管理費 | 敷金 / 礼金 | 間取り / 面積 | 階数 部屋番号 | 方位 | 詳細を見る | |
|---|---|---|---|---|---|---|
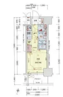
| 6.4万円 / 1.0万円 | 無料 / 6.4万円 | 1K / 21.66m² | 13階 ー | 南 | 詳細を見る |





