



愛知県名古屋市西区上堀越町3丁目19*1
名古屋市鶴舞線/庄内通 徒歩17分
名鉄犬山線/下小田井 徒歩15分
名鉄犬山線/中小田井 徒歩24分
名鉄犬山線/下小田井 徒歩15分
名鉄犬山線/中小田井 徒歩24分
地上7階建 / 2010年08月 / 賃貸マンション
★☆くじらのゼロ賃貸は【仲介手数料0円×初期費用最安】で全国の物件をご紹介可能です☆★ ご覧頂きありがとうございます!くじらのゼロ賃貸は名古屋で一番初期費用の安い賃貸専門の不動産会社です(^^) ★相見積もり大歓迎★他社物件でも仲介手数料0円で内見や契約可能★初期費用分割可★ご希望の場所まで無料送迎サービス付♪★ラインで手軽にやり取り可能♪(24時間受付)★お気軽にお問合せください!
ただいま1人が検討中!
| 賃料 / 管理費 | 敷金 / 礼金 | 間取り / 面積 | 階数 部屋番号 | 方位 | 詳細を見る | |
|---|---|---|---|---|---|---|
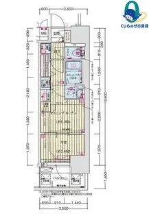
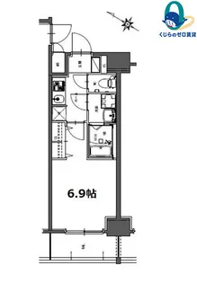
| 7.0万円 / 7,000円 | 無料 / 無料 | 1R / 36.54m² | 4階 ー | 南 | 詳細を見る |





























































