

14.0万円
管理費ー
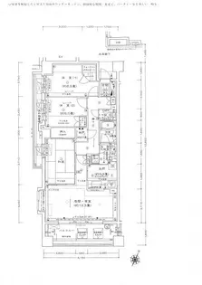
東急こどもの国線/恩田駅 歩36分
JR横浜線/町田駅 歩37分
4LDK / 91.5m²
地上2階建
築22年
| 店舗名 | 朝日リビング(株)町田本社営業部 |
|---|---|
| 住所 | 東京都町田市森野1-8-3 |
| 定休日 | 水曜日 |
| 営業時間 | AM10:00~PM18:30 |
| 交通 | - |
| 免許番号 | 国土交通大臣(13)第2135号 |
| 代表者名 | - |
| 所属団体 | (一社)全国住宅産業協会会員 (公社)首都圏不動産公正取引協議会加盟 |
| TEL | 042-726-5211 |

4.59
5.00
5.00
4.00
4.00
4.50
5.00
4.67
今回の不動産会社に決めた理由は、物腰が柔らかく、一生懸命こちら側の要望をくみ取り反映させようとしてくださったためです。また、内見も事情があり、2-3度お願いしたのですが、嫌な顔せず、内見時間も柔軟に対応してくださいました。初期費用についても少し予算オーバーだったため、家賃の交渉をお願いしたのですが、うまく貸主とお話いただき最終的に希望の家賃額で契約ができました。また、削れそうな費用についても、メリット・デメリットを含め丁寧に説明してくださり、それを基に安心して判断することが出来ました。実際に契約をすることに決めた際は今後のスケジュール感についてご説明してくださったり、現在の契約審査状況のリアルタイムでの共有、また、必要な書類などもまとめてご連絡下さったので、不安なく契約まで行うことが出来ました。何より、全体を通して、メールのレスポンスがとても速く、不動産の営業時間を過ぎていても対応してくださったのには、とても感謝しています。
(2024/08投稿)4.50
自分が探していた物件の場所、建物条件、家賃、駐車場の有無など全てがマッチングしているアパートを取り扱っている不動産屋さんがこちらの不動産屋さんだったことが契約した理由になります。 引っ越し自体が初めてで右も左もわからない状態で申し込みをしたのですが、対応してくださったスタッフさんに事細かく説明してもらい安心して契約することが出来ました。 初めて物件を内見しに行った時も、田舎から出てきて土地勘のない私に優しくしていただきました。。道がわからない場合は近くの主要な場所まで迎えに来てくれる提案もして下さいました。 内見時、大家さんにも優しく接していただいて、内見後にすぐ申し込みをした要因でもありました。 契約時も、初歩的な質問に親身になって細かく説明してもらいました。 契約から鍵の受け渡しまでに数日掛かるとのことでしたが、私の事情を汲んでくれたのかビックリするほど早い鍵の受け渡しをしてもらい、引っ越し荷物も滞りなく部屋に運び入れることが出来て大変助かりました。
(2021/12投稿)AM10:00~PM18:30
水曜日


14.0万円
管理費ー
4LDK / 91.5m²
地上2階建
築22年


15.0万円
管理費ー
3LDK / 77.83m²
地上2階建
築4年


20.0万円
管理費ー
3LDK / 115.94m²
地上2階建
築21年


14.5万円
管理費ー
3SLDK / 130.32m²
地上2階建
築15年


8.6万円
管理費7,000円
3LDK / 65m²
1階 / 地上3階建
築47年 / 賃貸マンション


9.9万円
管理費5,000円
1SLDK / 56.81m²
5階 / 地上5階建
築38年 / 賃貸マンション


7.3万円
管理費3,000円
1DK / 26.17m²
3階 / 地上3階建
築1年 / 賃貸アパート


10.0万円
管理費3,000円
3DK / 65.4m²
1階 / 地上3階建
築36年 / 賃貸マンション


10.0万円
管理費5,000円
4LDK / 82.8m²
3階 / 地上12階建
築32年 / 賃貸マンション


8.0万円
管理費7,000円
2LDK / 57.51m²
2階 / 地上4階建
築29年 / 賃貸マンション


10.0万円
管理費ー
3LDK / 56.77m²
2階 / 地上3階建
築30年 / 賃貸マンション


12.0万円
管理費1.0万円
2LDK / 54.3m²
10階 / 地下1地上14階建
築26年 / 賃貸マンション
8.8万円
管理費3,000円
2LDK / 61.43m²
3階 / 地上3階建
築46年 / 賃貸マンション


9.7万円
管理費5,000円
3LDK / 60m²
9階 / 地上10階建
築29年 / 賃貸マンション


9.0万円
管理費3,000円
2DK / 41.6m²
3階 / 地上4階建
築38年 / 賃貸マンション


29.5万円
管理費5,000円
4LDK / 114.77m²
2-3階 / 地上3階建
築37年 / 賃貸マンション
13.5万円
管理費1.0万円
3LDK / 72.88m²
4階 / 地上9階建
築26年 / 賃貸マンション


14.5万円
管理費5,000円
3LDK / 79.77m²
18階 / 地上26階建
築28年 / 賃貸マンション


9.3万円
管理費2,000円
2LDK / 59m²
3階 / 地上5階建
築34年 / 賃貸マンション


9.3万円
管理費ー
1LDK / 43.2m²
1階 / 地上5階建
築32年 / 賃貸マンション


9.3万円
管理費5,000円
2LDK / 52m²
3階 / 地上4階建
築35年 / 賃貸マンション


9.2万円
管理費ー
2LDK / 51.52m²
2階 / 地上6階建
築30年 / 賃貸マンション


7.3万円
管理費3,000円
2LDK / 43.8m²
1階 / 地上3階建
築46年 / 賃貸アパート


13.8万円
管理費5,000円
2LDK / 57.9m²
1階 / 地上2階建
築2年 / 賃貸アパート


9.9万円
管理費3,000円
3LDK / 62.31m²
2階 / 地下1地上3階建
築26年 / 賃貸マンション


20.0万円
管理費ー
3LDK / 76.78m²
3階 / 地下1地上7階建
築21年 / 賃貸マンション


11.5万円
管理費ー
3LDK / 69.56m²
1階 / 地上2階建
築29年


11.0万円
管理費1.5万円
3LDK / 69.64m²
8階 / 地上9階建
築50年 / 賃貸マンション


9.8万円
管理費4,500円
1LDK / 35.26m²
1階 / 地上2階建
新築 / 賃貸アパート


12.5万円
管理費9,000円
2SLDK / 65.4m²
2階 / 地上6階建
築24年 / 賃貸マンション
現在0件保存されています。
あと50件保存することができます。
お気に入りページから保存した物件が確認できます。

削除しました。