



兵庫県芦屋市山芦屋町
阪急神戸線/芦屋川駅 歩11分
地上2階建 / 2007年06月 / 一戸建
積水ハウス施工の注文建築住宅 ◆平成19年6月築
掘込駐車場2台可(使用は車種による) シャッターはリモコン昇降式 ◆土地:87.26坪◆1階雨戸は電動昇降式(LDK4か所・和室2か所)◆ダイニング・玄関上部は吹き抜け◆居室窓はペアガラス+樹脂サッシ
ただいま1人が検討中!
| 賃料 / 管理費 | 敷金 / 礼金 | 間取り / 面積 | 階数 部屋番号 | 方位 | 詳細を見る | |
|---|---|---|---|---|---|---|
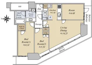
| 49.0万円 / ー | 49.0万円 / 98.0万円 | 4LDK / 194m² | ー ー | 南西 | 詳細を見る |




























































