

11.0万円
管理費5,000円
敷11.0万円礼11.0万円
東京メトロ半蔵門線/表参道駅 歩10分
東京メトロ千代田線/乃木坂駅 歩12分
東京メトロ日比谷線/六本木駅 歩13分
東京メトロ千代田線/乃木坂駅 歩12分
東京メトロ日比谷線/六本木駅 歩13分
東京都港区西麻布2
1K / 23.31m²
2階 / 地上3階建
築20年 / 賃貸マンション
ただいま 2人 が検討中!
| 店舗名 | (株)大明産業 |
|---|---|
| 住所 | 東京都世田谷区奥沢5-28-10 |
| 定休日 | 水・日・祝 |
| 営業時間 | 10:00~19:00 |
| 交通 | - |
| 免許番号 | 東京都知事(13)第22307号 |
| 代表者名 | - |
| 所属団体 | (公社)全日本不動産協会東京都本部会員 (公社)首都圏不動産公正取引協議会加盟 |
| TEL | 03-3722-2353 |

10:00~19:00
水・日・祝


11.0万円
管理費5,000円
1K / 23.31m²
2階 / 地上3階建
築20年 / 賃貸マンション


13.8万円
管理費7,000円
2DK / 40.46m²
3階 / 地上4階建
築32年 / 賃貸マンション


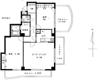
32.0万円
管理費1.5万円
2LDK / 79.8m²
2階 / 地下1地上3階建
築32年 / 賃貸マンション


7.7万円
管理費3,000円
1K / 23m²
1階 / 地上2階建
築34年 / 賃貸アパート
現在0件保存されています。
あと50件保存することができます。
お気に入りページから保存した物件が確認できます。

削除しました。